Grha BMW di Surabaya

Grha BMW di Surabaya ini adalah sebuah fasilitas mix-use, yaitu
penggabungan antara fasilitas umum dengan fasilitas komersial. Fasilitas ini
menyediakan segala hal yang berkaitan dengan BMW, mulai dari kendaraan
bermotor, aksesori kendaraan bermotor, dan kebutuhan kendaraan bermotor
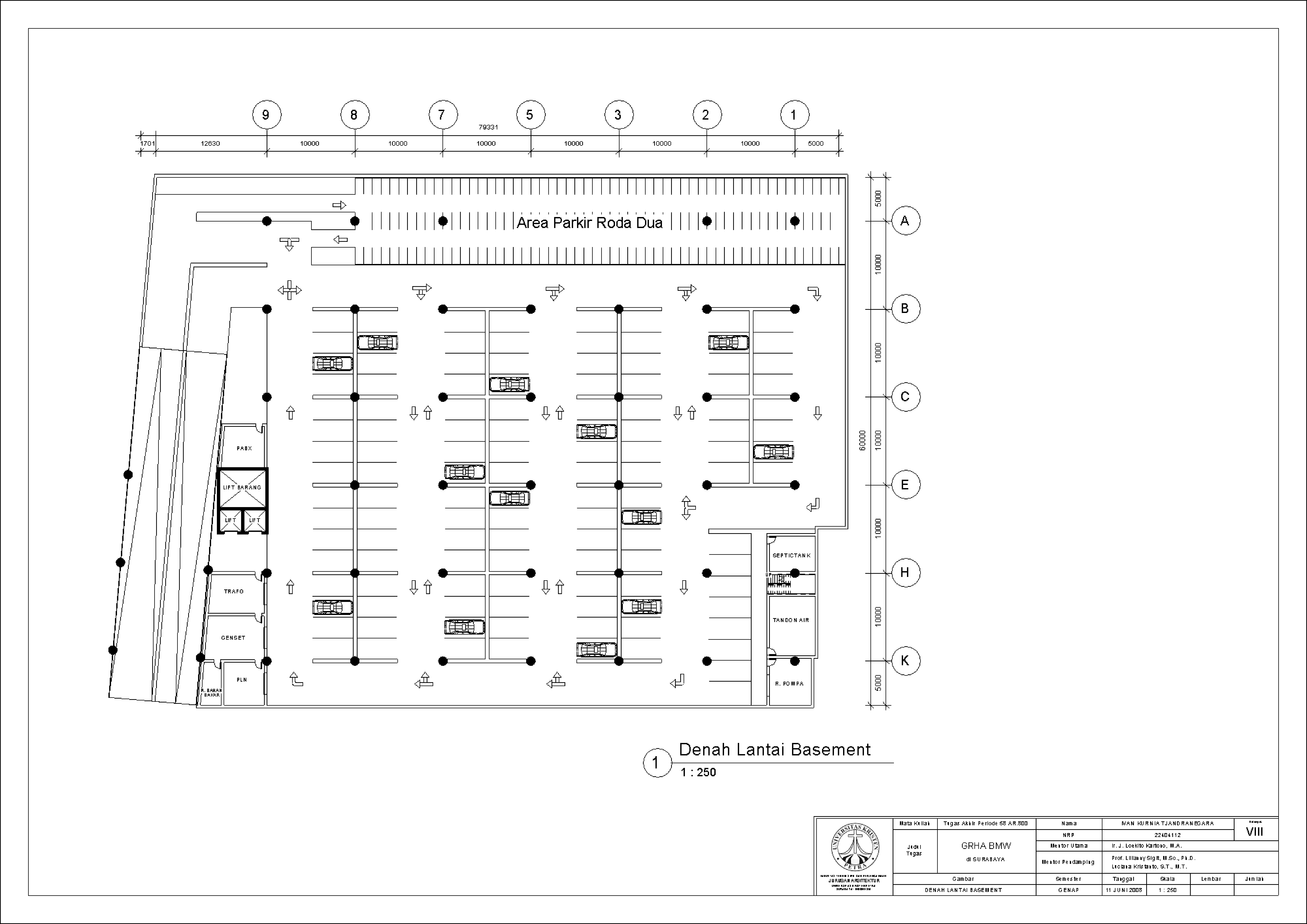
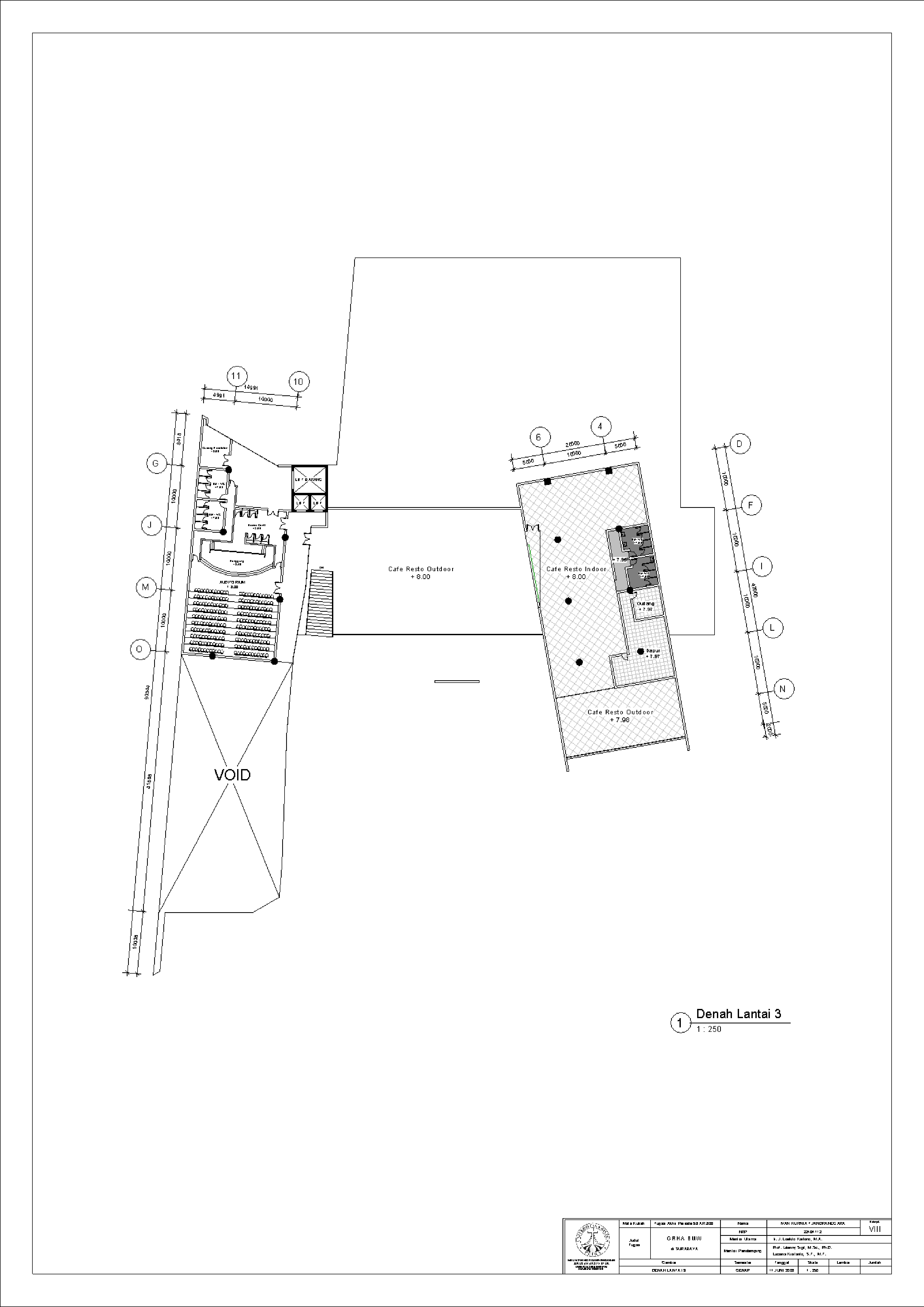
lainnya. Bangunan ini memiliki fasilitas ruang pamer kendaraan bermotor sebagai
fasilitas utama, yang kemudian didukung oleh fasilitas-fasilitas penunjang seperti
bengkel untuk servis, toko variasi dan suku cadang, cafe dan restoran, museum
dan yang terakhir auditorium. Tujuan utama dari proyek ini adalah untuk menjadi
sebuah ikon baru bagi BMW di Indonesia khususnya Surabaya dengan menjadi
pusat dari seluruh kegiatan komersial dan komunitas dari BMW di Surabaya, dan
juga diharapkan dapat menjadi ikon baru bagi kawasan. Konsep perancangan dari
Grha BMW di Surabaya ini adalah "ultimate" yaitu sebuah kata yang mengambil
dari konsep BMW "ultimate driving experience".

IVAN KURNIA TJANDRANEGARA J. Loekito Kartono (Advisor 1); Lilianny Sigit Arifin (Examination Committee 1) Universitas Kristen Petra Indonesian Digital Theses Undergraduate Thesis Laporan Perancangan Arsitektur Laporan Perancangan Arsitektur No. 06132672/ARS/2008 ; Ivan Kurnia Tjandranegara (22404112 ) AUTOMOBILE SHOWROOMS--DESIGNS AND PLANS; EXHIBITION BUILDINGS--DESIGNS AND PLANS

Files