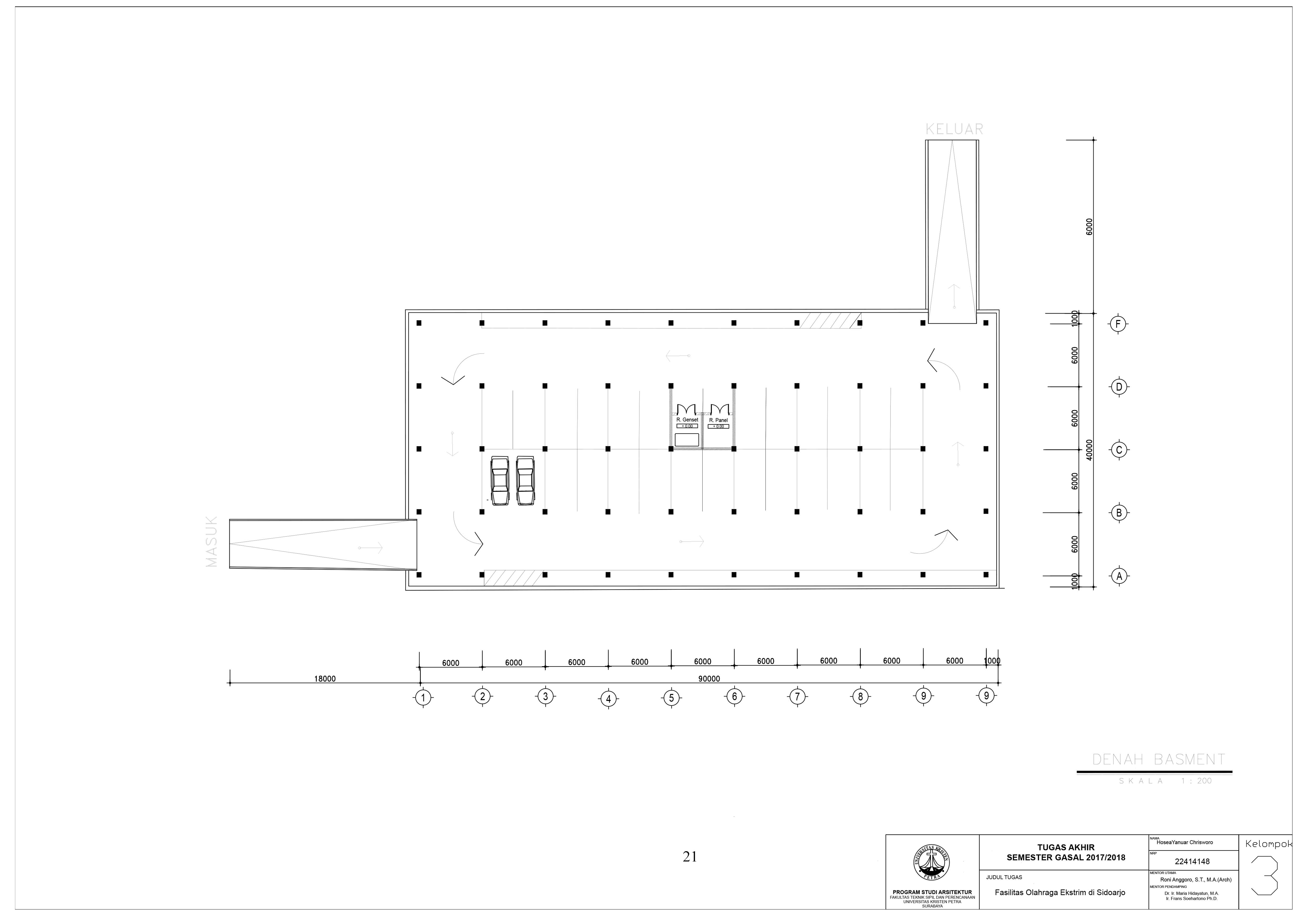
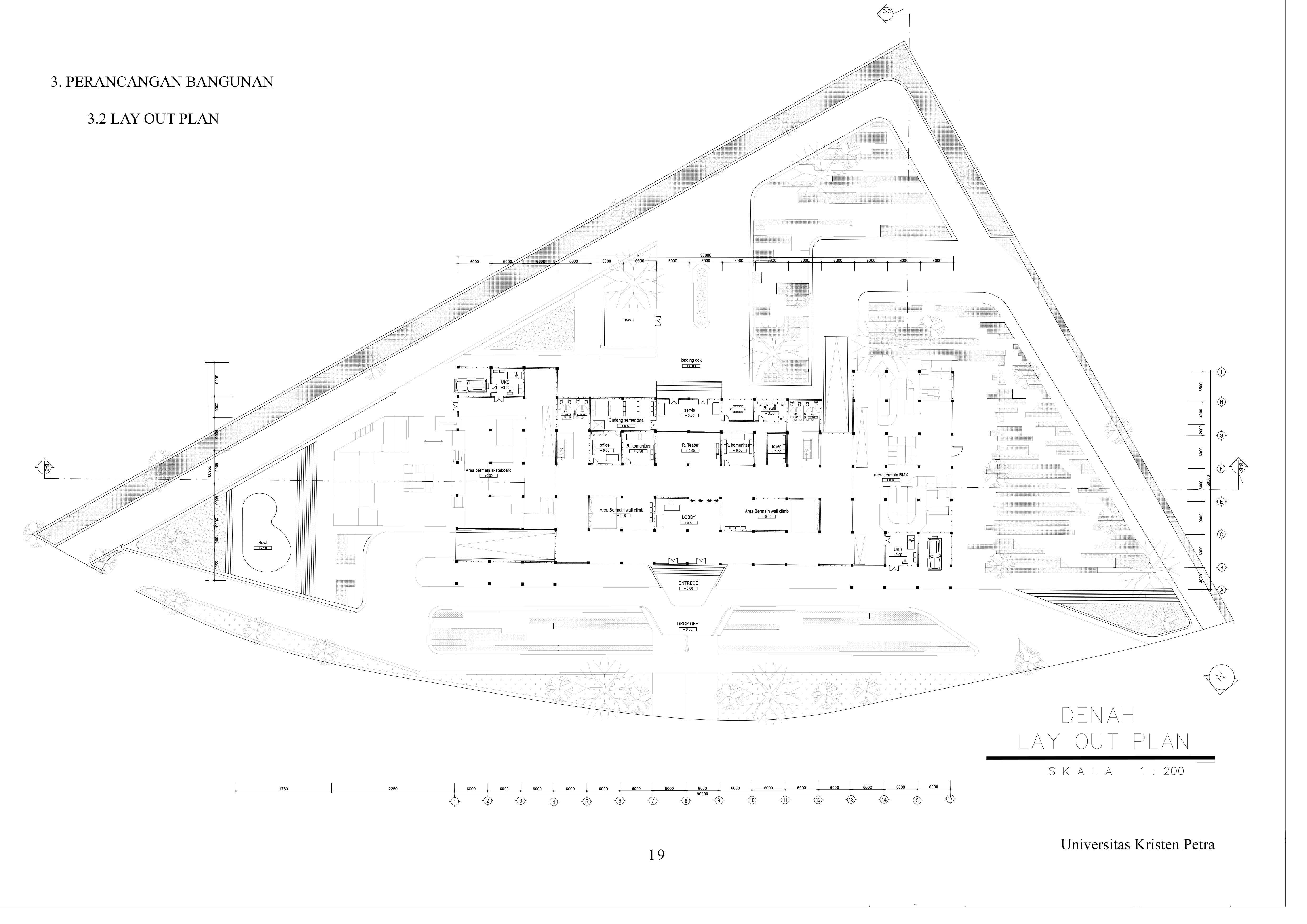
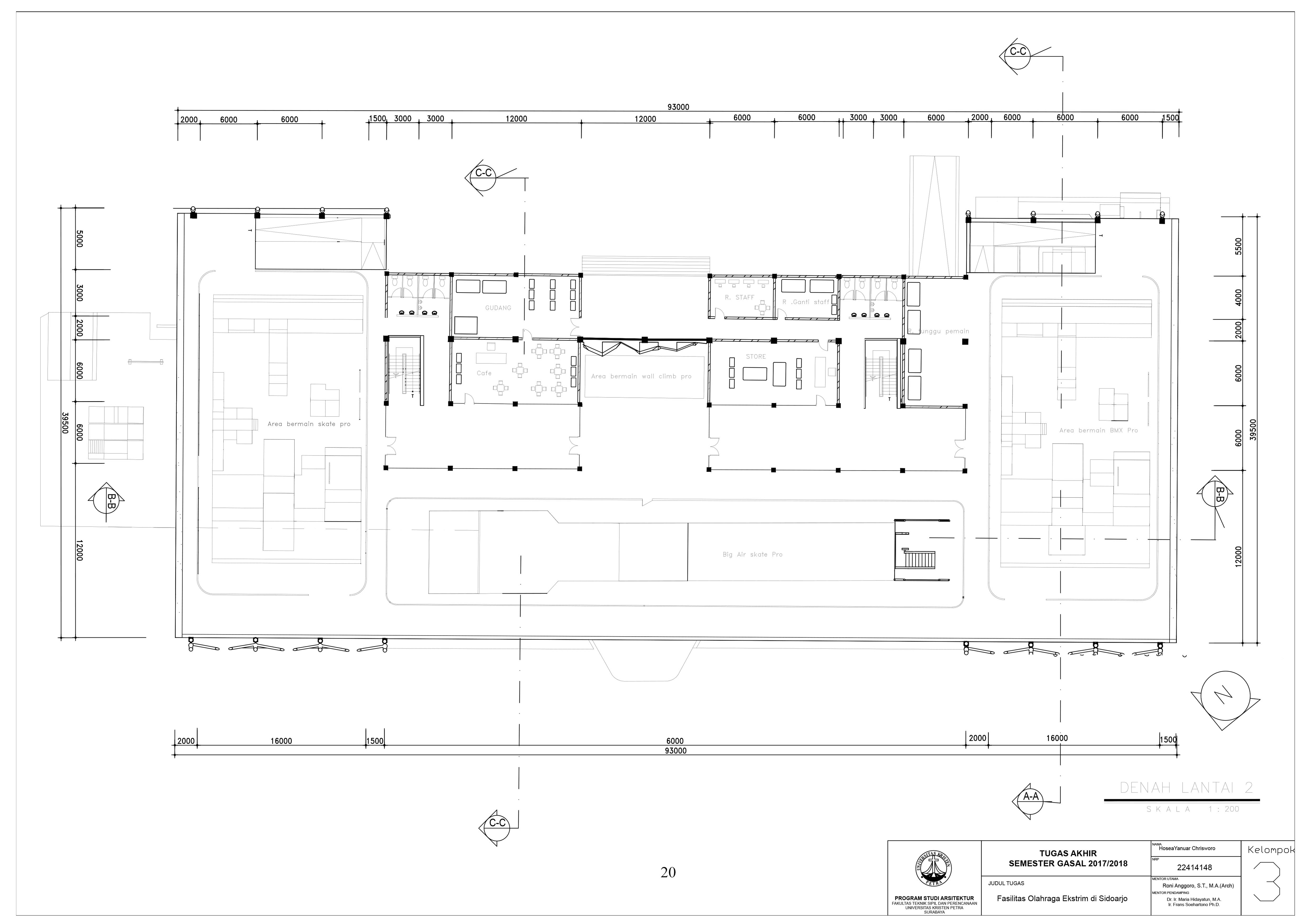
Fasilitas olahraga ekstrem di Sidoarjo

Olahraga ekstrem adalah olahraga yang berfokus pada ekspresi pemain pada suatu arena halang rintang dan alur tingkat ekstrem yang mengutamakan keterampilan olah fisik dan gerakan akrobatik dan memiliki tingkat resiko yang tinggi. Jenis olahraga ekstrem ini cukup banyak, yang di dalam proyek ini dibatasi pada skate-boarding, wall-climbing, dan sepeda BMX. Penggemar dan pemain olahraga ekstrem, sebagian besar, adalah para remaja dan kaum muda. Hal ini cukup dapat dipahami karena pada usia pertumbuhan remaja tingkat perkembangan untuk kemandirian dan pencarian indentitas sangat menonjol.
Perkembangan olahraga ekstrem di Indonesia, termasuk di kota Sidoarjo, tidak terlalu berkembang, yang disebabkan oleh faktor dukungan orang tua, masyarakat dan pemerintah yang masih memandang olahraga ekstrem dari perspektif yang negatif, terutama karena tingkat resiko kecelakaan yang sangat tinggi. Padahal dengan menekankan pada keterampilan pemain olahraga ekstrem, setiap cabang olahraga memiliki standar, peralatan dan prosedur persiapan dan pelaksanaan permainan yang baku dan aman. Hal ini berbanding terbalik dengan animo penggemar olahraga ekstrem di negara-negara maju.

HOSEA YANUAR CHRISWORO Roni Anggoro, S.T., M.A.Arch. (Advisor 1); Frans Soehartono (Advisor 2); Maria Immaculata Hidayatun (Advisor 3); Altrerosje Asri, S.T., M.T. (Examination Committee 1); Ir. V.P. Nugroho Susilo, M.Bdg.Sc. (Examination Committee 2); Rony Gunawan (Examination Committee 3) Universitas Kristen Petra Indonesian Digital Theses Undergraduate Thesis Laporan Perancangan Arsitektur Laporan Perancangan Arsitektur No. 020/23848/ARS/2018; Hosea Yanuar Chrisworo (22414148) ARCHITECTURE-DESIGNS AND PLANS; EXTREME SPORTS; SPORTS FACILITIES--DESIGN AND CONSTRUCTION

Files