Asrama mahasiswa S1 Institut Teknologi Sepuluh Nopember

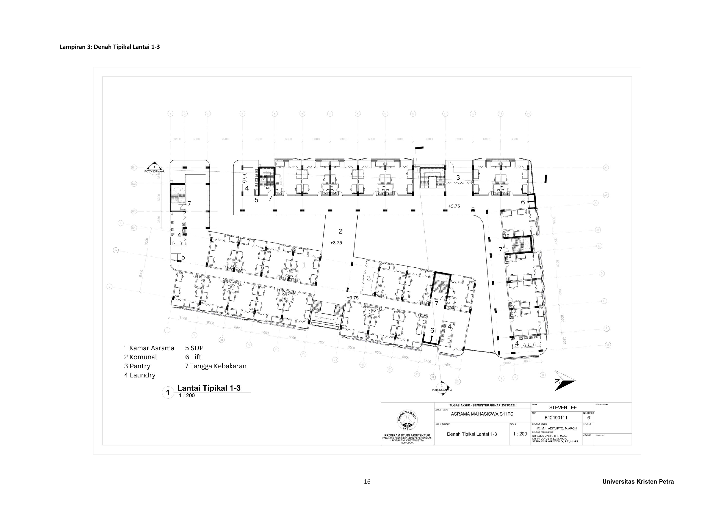
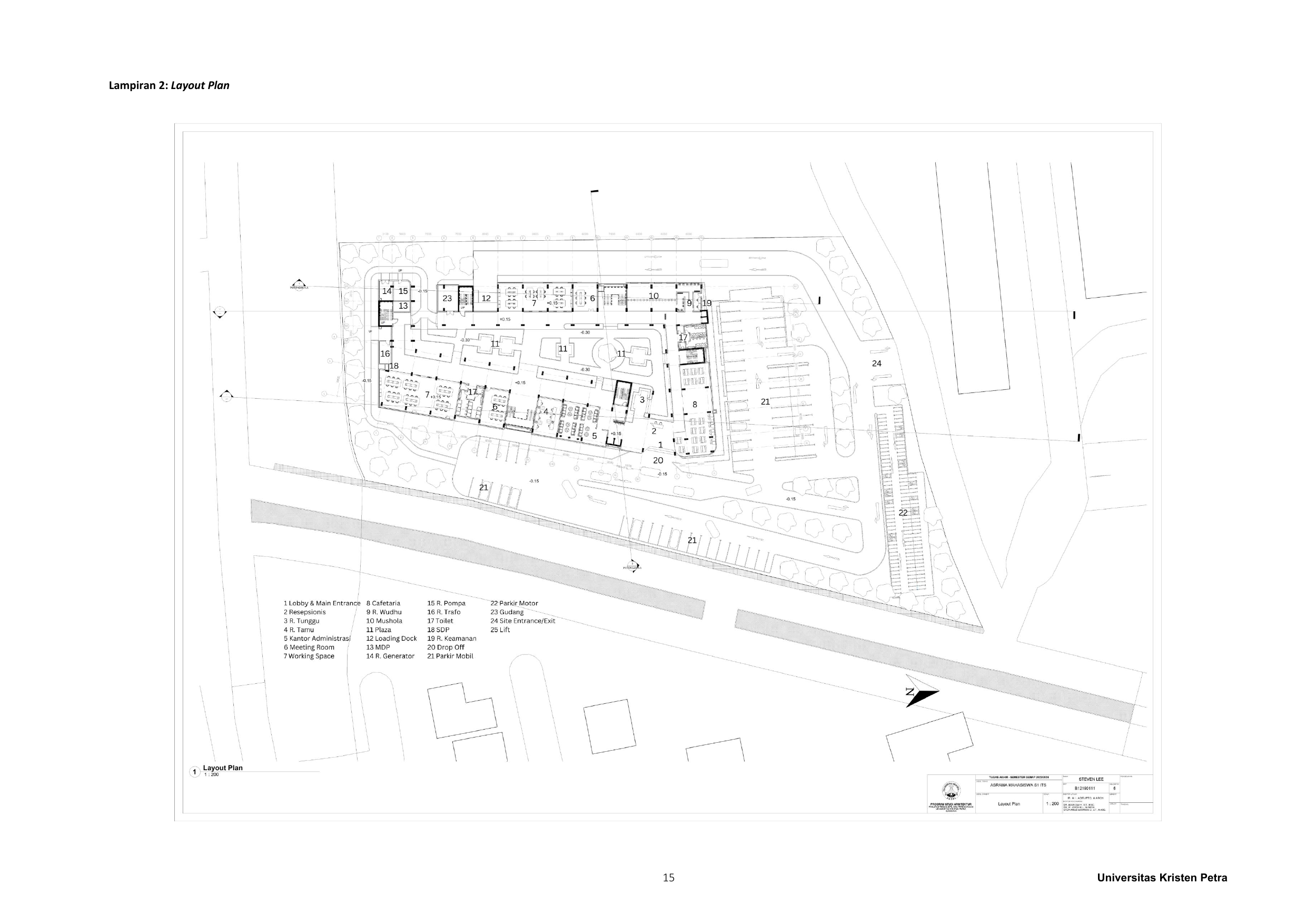
Perancangan asrama mahasiswa S1 di Institut Teknologi Sepuluh Nopember (ITS) menjadi fokus utama dalam mengatasi keterbatasan ketersediaan tempat tinggal yang layak dan aman bagi mahasiswa. Masalah utama yang diteliti adalah kebutuhan tempat tinggal yang meningkat seiring bertambahnya jumlah mahasiswa setiap tahun, terutama mereka yang berasal dari luar kota dan provinsi. Metode penelitian yang digunakan mencakup analisis data tapak, iklim, serta penerapan konsep arsitektur perilaku untuk menciptakan lingkungan asrama yang nyaman dan mendukung interaksi sosial. Hasil penelitian menunjukkan bahwa desain asrama yang memperhatikan aspek-aspek seperti kenyamanan, keamanan, dan ruang komunal dapat meningkatkan kesejahteraan mahasiswa. Desain yang diusulkan juga memperluas kapasitas daya tampung asrama dengan fasilitas pendukung seperti ruang belajar, area komunal, dan layanan kesehatan yang memadai. Dengan demikian, perancangan ini tidak hanya meningkatkan kapasitas tetapi juga menciptakan lingkungan yang mendukung pertumbuhan akademis dan karakter mahasiswa.

STEVEN LEE Ir. Markus Ignatio Aditjipto, M.Arch. (Advisor 1); Agus Dwi Hariyanto (Advisor 2); Dr. Ir. Joyce Marcella Laurens, M.Arch. (Advisor 3); Ir. Stephanus Wirawan Dharmatanna, S.T., M.Ars. (Advisor 4); Altrerosje Asri, S.T., M.T. (Examination Committee 1); Ir. Samuel Hartono, M.Sc. (Examination Committee 2); Elvina Shanggrama Wijaya (Examination Committee 3) Universitas Kristen Petra Indonesian Digital Theses Undergraduate Thesis Laporan Perancangan Arsitektur Laporan Perancangan Arsitektur No. 01024524/ARS/2024; Steven lee (B12190111) DORMITORIES--DESIGNS AND PLANS

Files