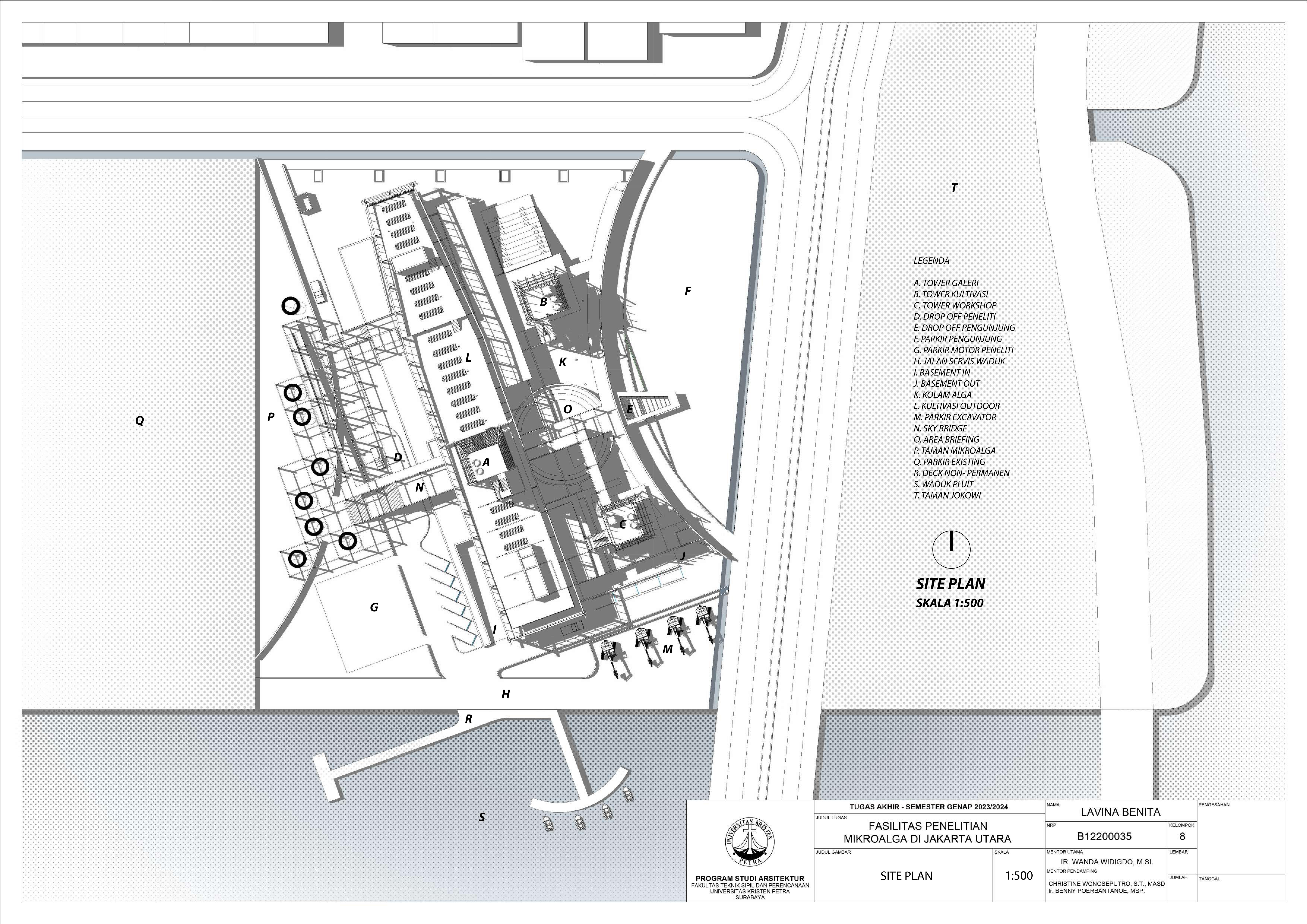
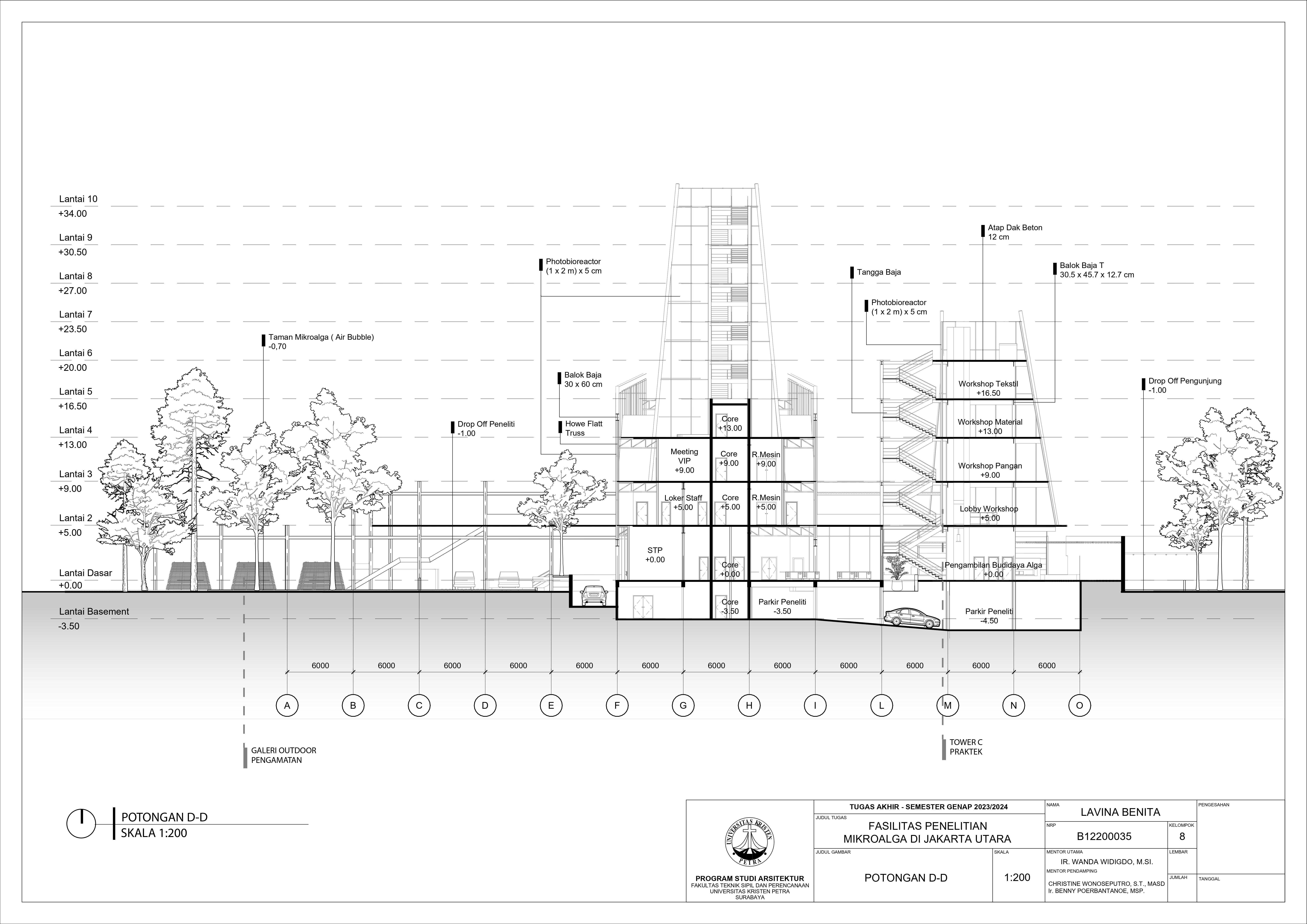
Fasilitas penelitian mikroalga di Jakarta Utara

Desain Fasilitas Penelitian Mikroalga di Jakarta Utara dilatarbelakangi oleh masalah lingkungan di Jakarta. Mulai dari populasi penduduk yang terus meningkat, penggunaan energi tidak terbarukan, hingga Jakarta menempati Peringkat 4 polusi udara terburuk di dunia. Untuk mengatasi hal tersebut, pemerintah mulai mengembangkan penelitian bioteknologi dari mikroalga. Fasilitas Penelitian Mikroalga diusulkan berdiri di Jakarta Utara. Permasalahan desain utama dari fasilitas ini adalah bagaimana mewadahi sistem kultivasi mikroalga hingga menjadi energi terbarukan tanpa mengganggu lingkungan sekitar. Oleh karena itu dipilih pendekatan sistem dan pendalaman pencahayaan yang berfokus pada proses serta alur kultivasi mikroalga sebagai penyelesaian dari masalah desain. Hasil rancangan dari pendekatan dan pendalaman adalah desain yang mewadahi proses penelitian mikroalga menjadi energi terbarukan serta mengurangi pencemaran gas CO2 yang berhasil. Hasil dari desain juga meningkatkan kesadaran pengunjung akan kondisi lingkungan dan mendorong penggunaan energi terbarukan di Jakarta.

LAVINA BENITA Wanda Widigdo Canadarma (Advisor 1); Christine Wonoseputro (Advisor 2); Ir. Benny Poerbantanoe, MSP. (Advisor 3); Ir. Markus Ignatio Aditjipto, M.Arch. (Examination Committee 1); Dr. Ir. Agus Dwi Hariyanto, S.T., M.Sc. (Examination Committee 2); Joyce M.Laurens (Examination Committee 3); Ir. Stephanus Wirawan Dharmatanna, S.T., M.Ars. (Examination Committee 4) Universitas Kristen Petra English Digital Theses Undergraduate Thesis Laporan Perancangan Arsitektur Laporan Perancangan Arsitektur No. 04024552/ARS/2024; Lavina Benita (B12200035) RESEARCH INSTITUTES--DESIGNS AND PLANS

Files