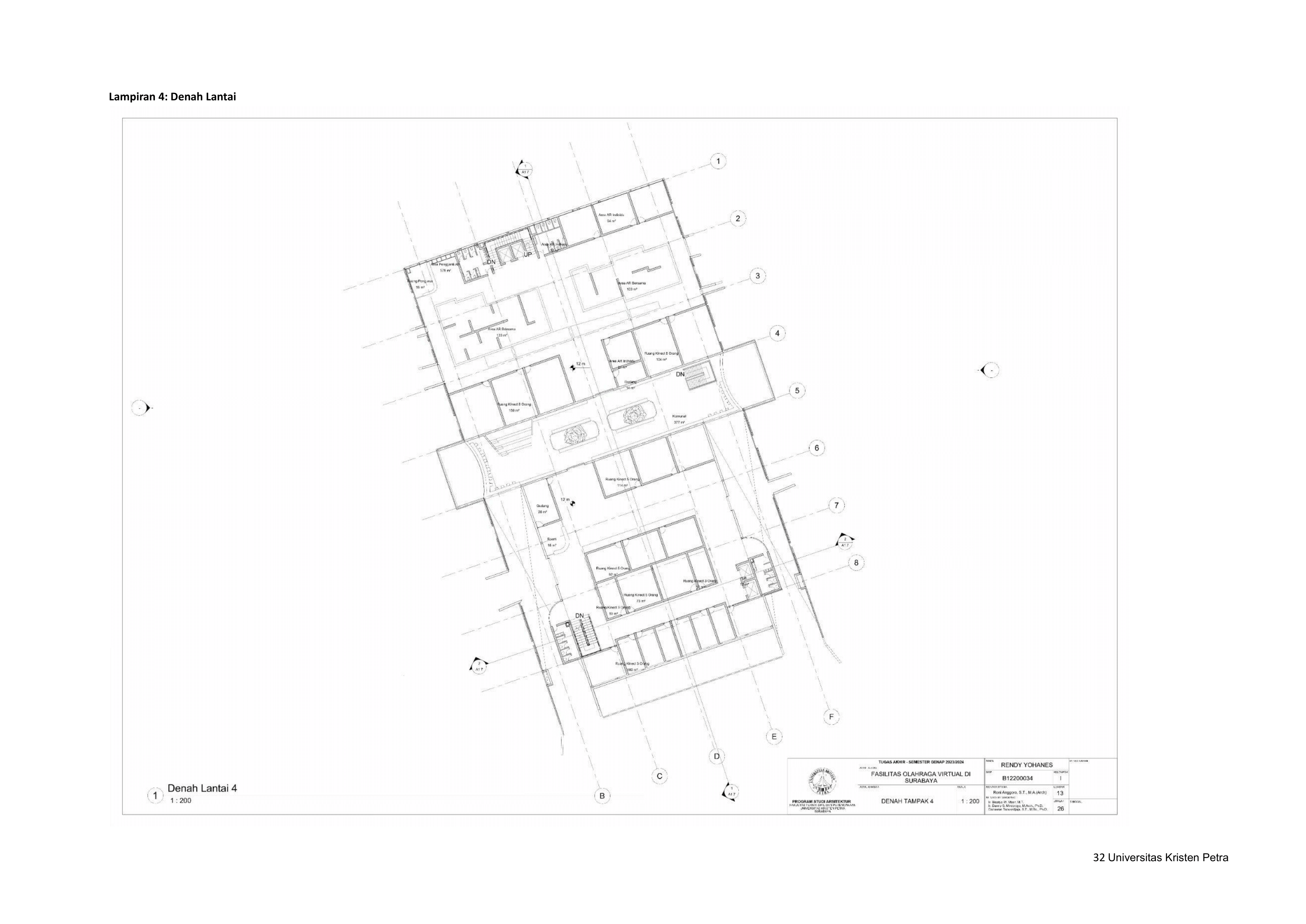
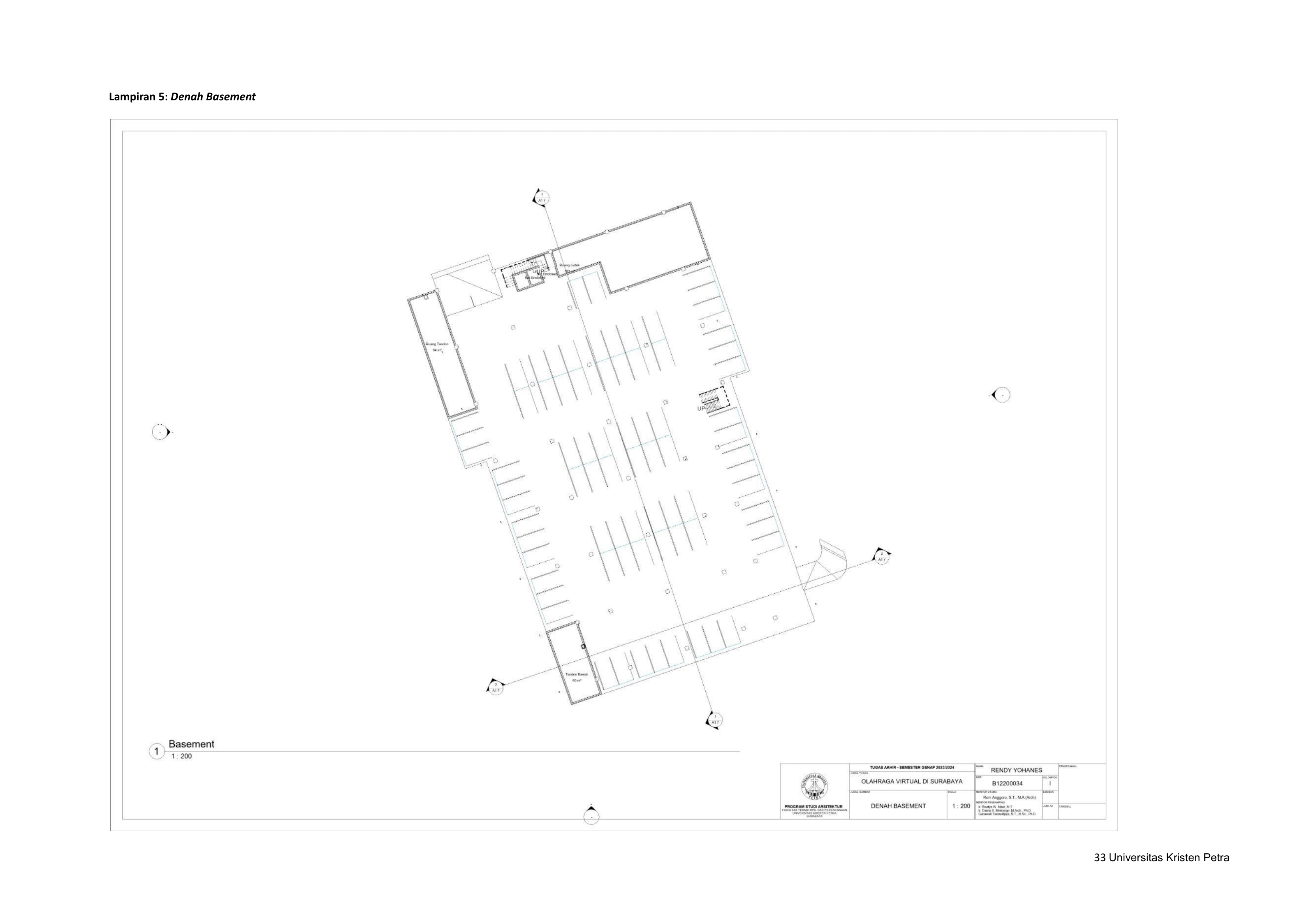
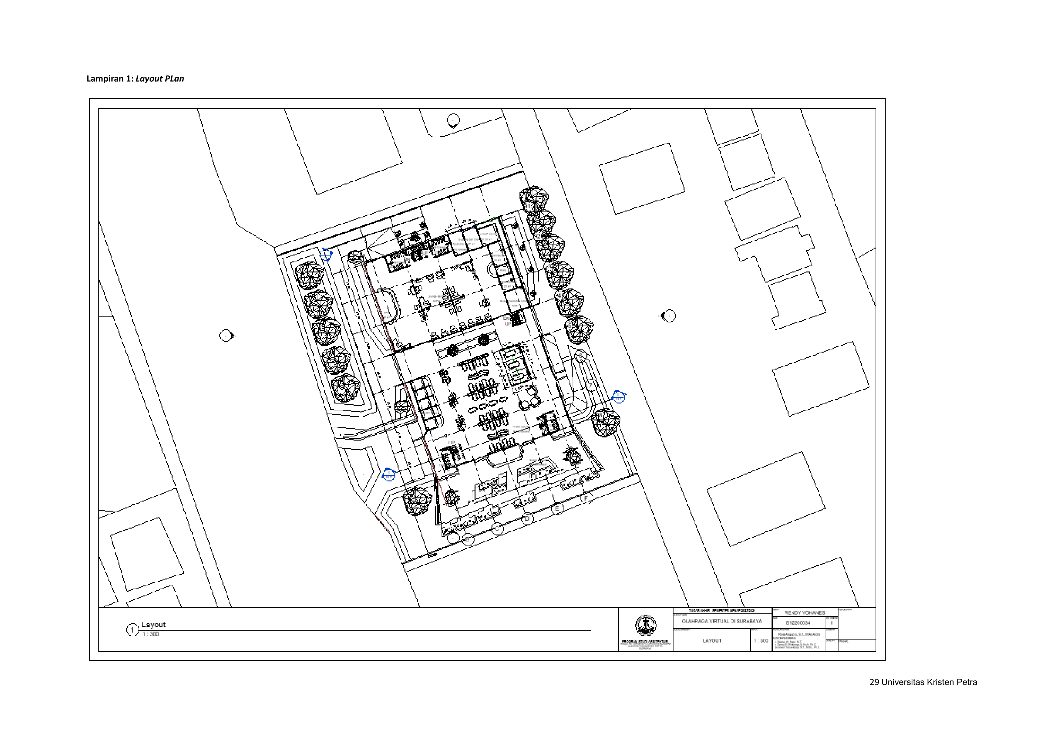
Fasilitas olahraga virtual di Surabaya

Perkembangan digital sekarang semakin berkembang, selain di bidang informasi, dunia digital juga semakin berkembang pada bidang permainan digital. Permainan digital seperti permainan komputer dan gadget sekarang sudah mulai menyentuh titik teratas dalam arti sudah susah untuk dikembangkan lagi dalam sisi cerita dan grafik dari permainan itu. Di sisi lain, digital pada bidang permainan sekarang sedang mengembangkan permainan dengan mendeteksi gerakan manusia yang akan terbaca oleh permainan tersebut, sehingga memungkinkan manusia untuk bermain sambil melakukan aktifitas fisik. Fasilitas Olahraga Virtual ini dibangun untuk meningkatkan aktivitas fisik masyarakat Surabaya, karena datanya sendiri menunjukkan bahwa orang di Indonesia memiliki standar aktivitas fisik yang rendah. Dengan adanya fasilitas ini, diharapkan tingkat aktivitas fisik masyarakat bisa meningkat dan menghasilkan pengalaman baru dalam bermain game yang sekarang bisa bersamaan dilakukan dengan berolahraga. Tentu dengan menggunakan teknologi yang cukup berkembang ini, fasilitas ini mendapatkan tantangan baru mengenai kebutuhan energi listrik yang cukup besar, sehingga fasilitas ini memiliki pendekatan menggunakan energi sesedikit mungkin, dan mengandalkan teknologi yang dapat menghasilkan energi khususnya listrik. Strategi yang digunakan kebanyakan pemanfaatan udara alami, dan pencahayaan alami dengan memanfaatkan kipas serta pembagian ruang yang menggunakan udara alami dan menggunakan udara buatan.

RENDY YOHANES Roni Anggoro, S.T., M.A.Arch. (Advisor 1); Ir. Bisatya Widadya Maer, M.T. (Advisor 2); Danny Santoso Mintorogo (Advisor 3); Gunawan Tanuwidjaja, S.T., M.Sc., Ph.D. (Advisor 4); Christine Wonoseputro (Examination Committee 1); Wanda Widigdo Canadarma (Examination Committee 2); Ir. Benny Poerbantanoe, MSP. (Examination Committee 3) Universitas Kristen Petra Indonesian Digital Theses Undergraduate Thesis Laporan Perancangan Arsitektur Laporan Perancangan Arsitektur No. 09024551/ARS/2024; Rendy Yohanes (B12200034) SPORT FACILITIES--DESIGNS AND PLANS

Files