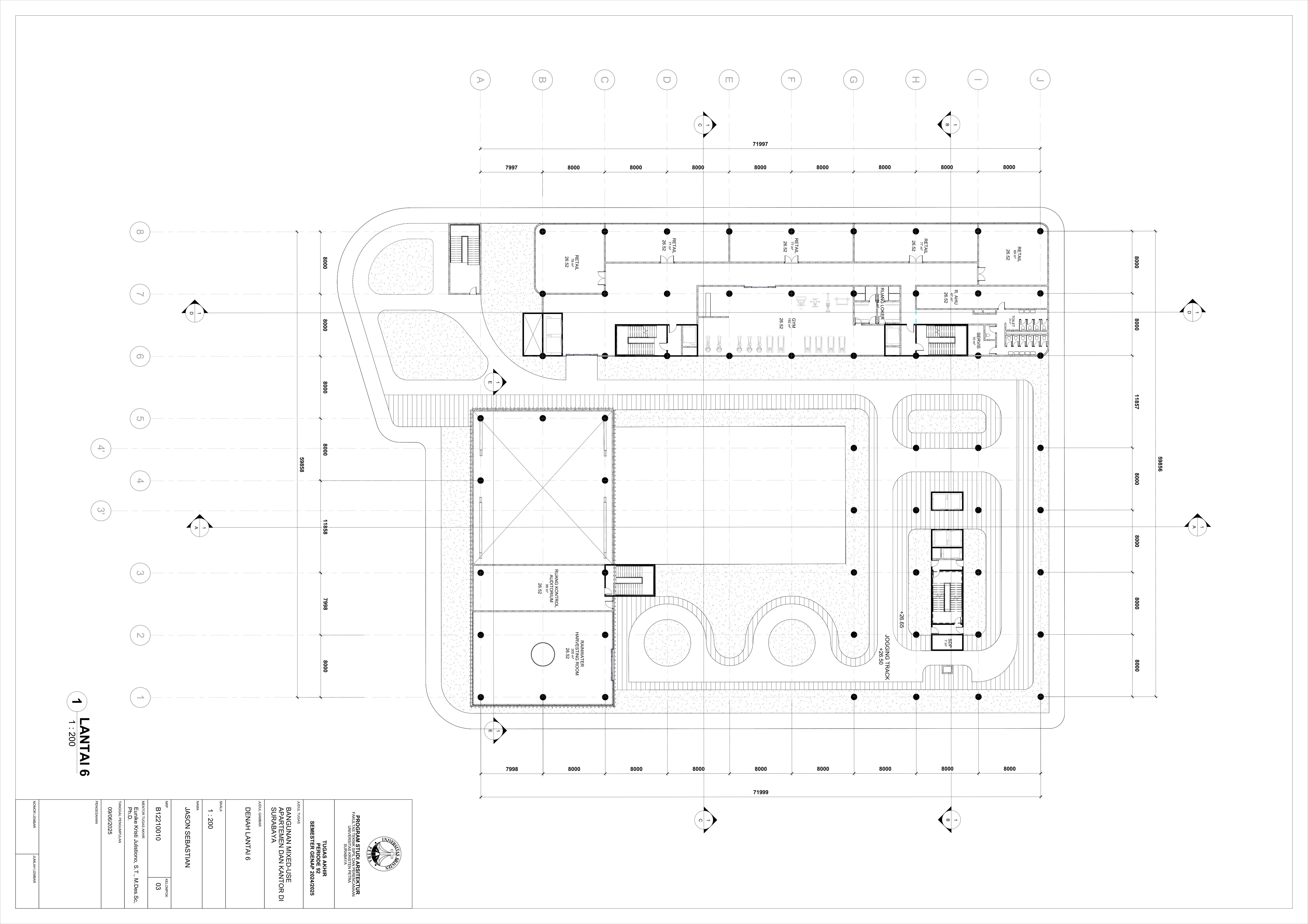
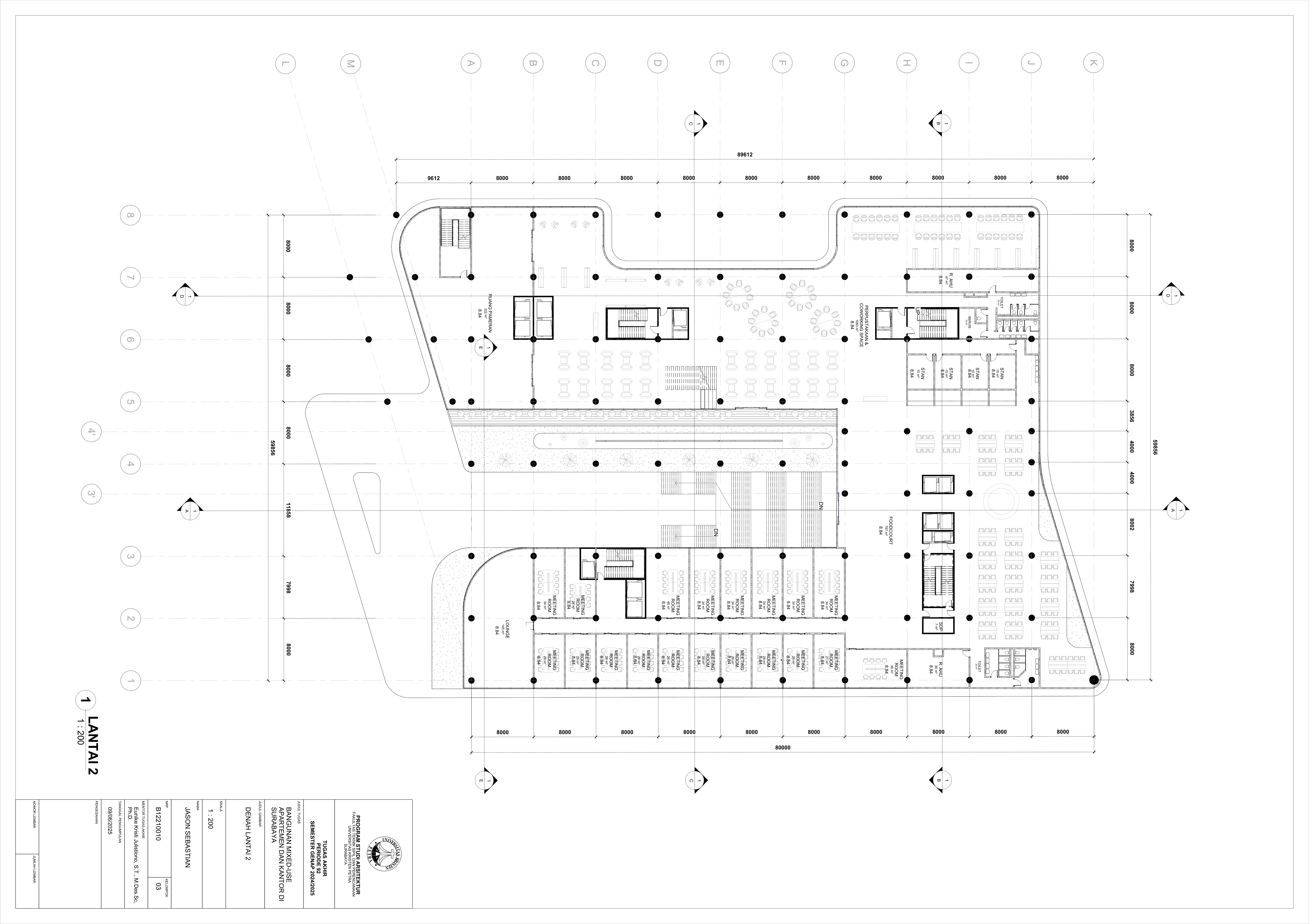
Bangunan mixed-use apartemen dan kantor di Surabaya

Pertumbuhan urbanisasi dan kebutuhan ruang di Surabaya mendorong pengembangan bangunan vertikal yang mampu mengintegrasikan fungsi hunian dan perkantoran dalam satu lokasi. Perancangan ini bertujuan untuk menghasilkan sebuah bangunan mixed-use yang menggabungkan apartemen dan kantor, dengan pendekatan berkelanjutan sesuai target net-zero emission carbon. Proyek ini mengakomodasi kebutuhan generasi milenial, pengusaha muda, dan pekerja kreatif untuk mengembangkan bisnis startup mereka dengan memaksimalkan efisiensi ruang, kemudahan akses, dan penerapan elemen biophilic untuk meningkatkan kualitas hidup pengguna. Metodologi perancangan melibatkan survei tapak, studi literatur, dan studi preseden untuk bisa menghasilkan desain yang menjawab permasalahan lingkungan saat ini. Bangunan dirancang untuk meminimalisir emisi karbon operasional melalui efisiensi energi, optimalisasi pencahayaan alami, dan penghawaan. Fasilitas yang dirancang meliputi apartemen, kantor sewa, coworking space, area hijau, dan fasilitas penunjang komersial. Perancangan ini juga memperhatikan Sustainable Development Goals (SDGs) terkait penghematan energi dan pertumbuhan ekonomi yang berkelanjutan. Hasil rancangan yang diharapkan adalah desain yang fungsional, fleksibel, dan ramah lingkungan, yang mampu memenuhi kebutuhan masyarakat urban dan memberikan kontribusi positif terhadap arsitektur berkelanjutan di Surabaya.

JASON SEBASTIAN Eunike Kristi Julistiono, S.T., M.Des.Sc., Ph.D. (Advisor 1); Ir. Stephanus Wirawan Dharmatanna, S.T., M.Ars. (Advisor 2); Dr. Dra. Nani Indrajani Tjitrakusuma, M.Pd. (Advisor 3); Aris Budhiyanto (Examination Committee 1); Elvina Shanggrama Wijaya (Examination Committee 2); Dr. Ir. Joyce Marcella Laurens, M.Arch. (Examination Committee 3) Universitas Kristen Petra Indonesian Digital Theses Undergraduate Thesis Laporan Perancangan Arsitektur laporan Perancangan Arsitektur No. 00024644/ARS/2025; Jason Sebastian (B12210010) MULTIPURPOSE BUILDINGS--DESIGNS AND PLANS; JOINT OCCUPANCY OF BUILDINGS--DESIGN AND PLANS; OFFICE BUILDINGS--DESIGNS AND PLANS; ARCHITECTURE, MODERN 21ST CENTURY--DESIGNS AND PLANS

Files