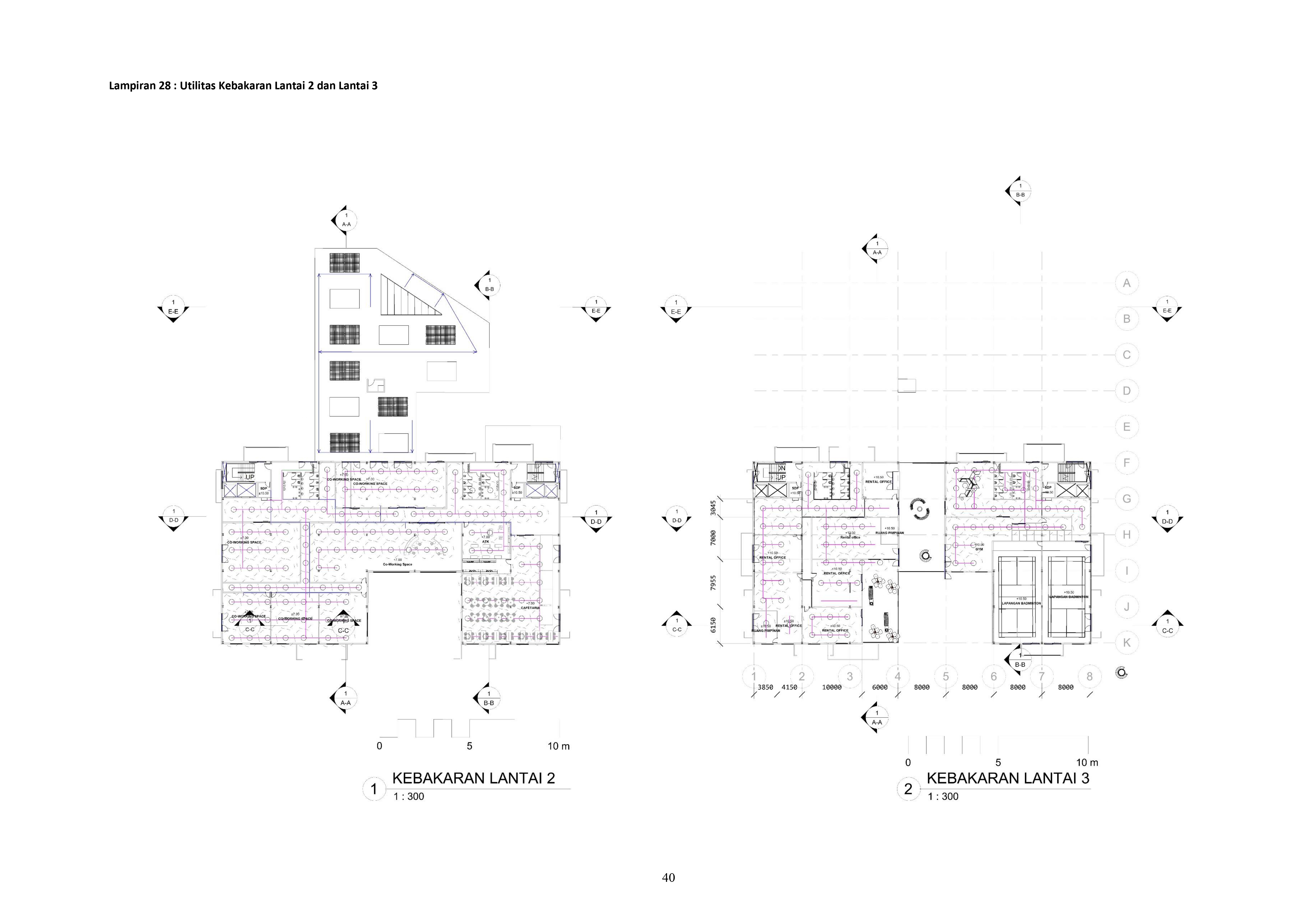
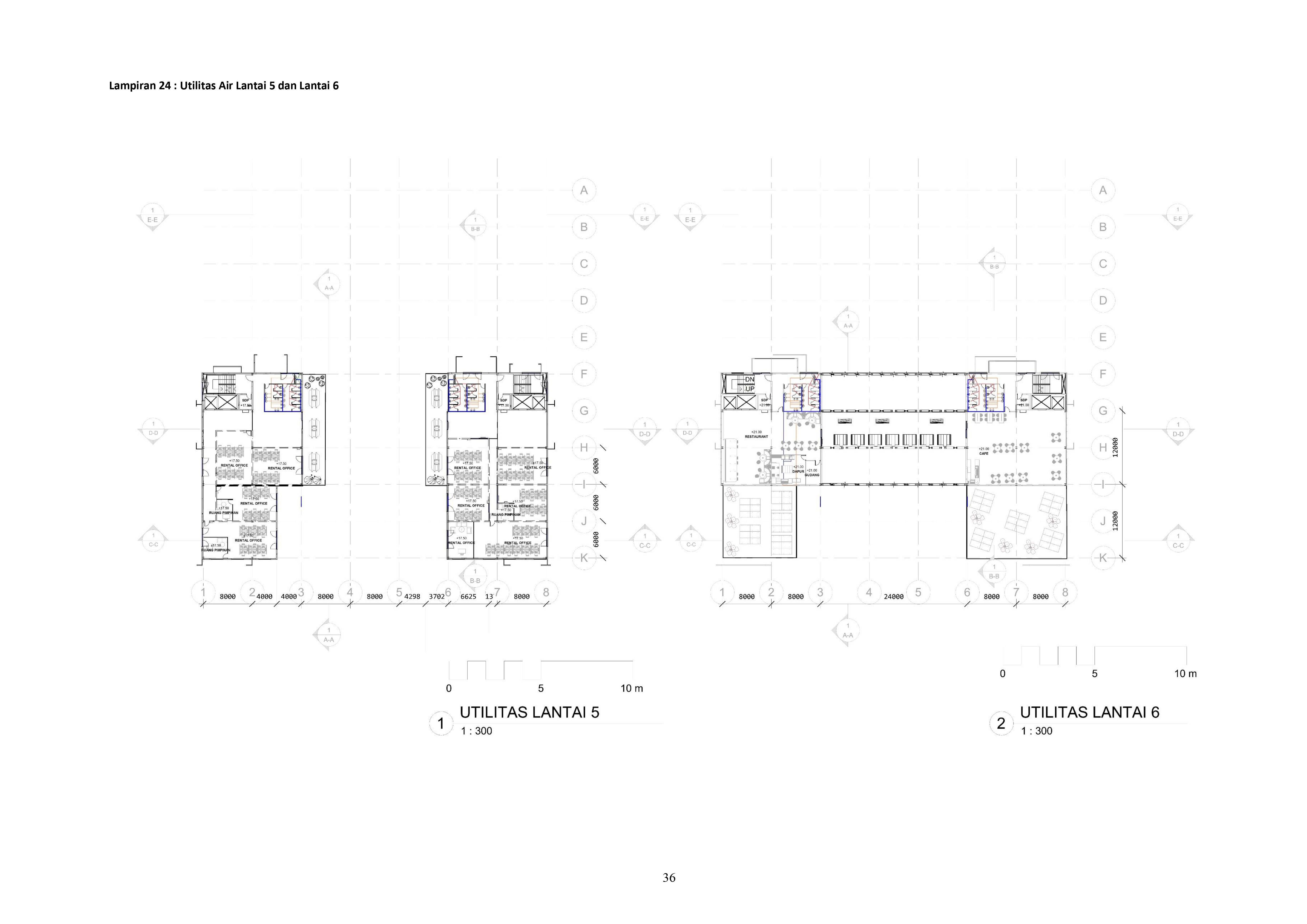
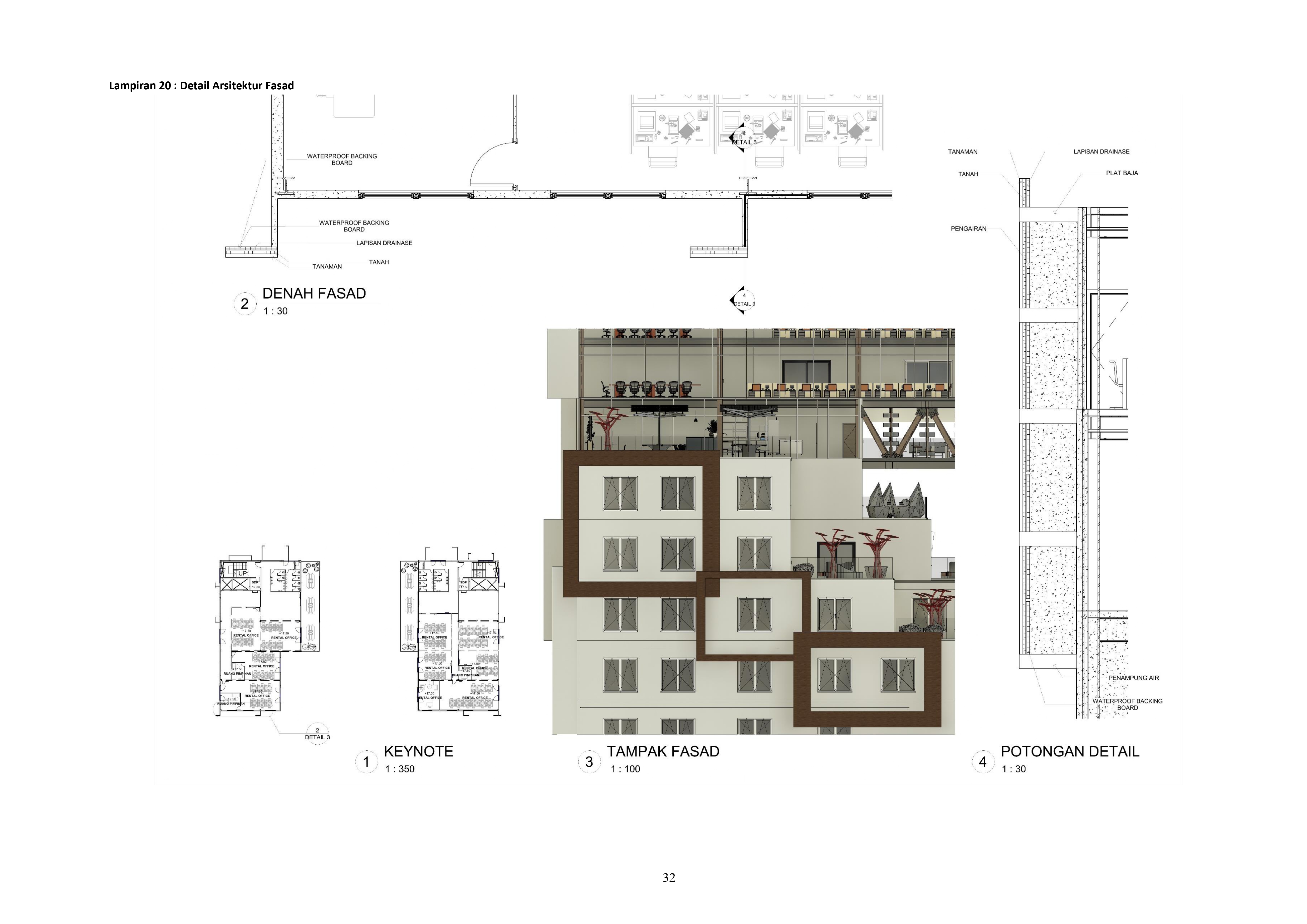
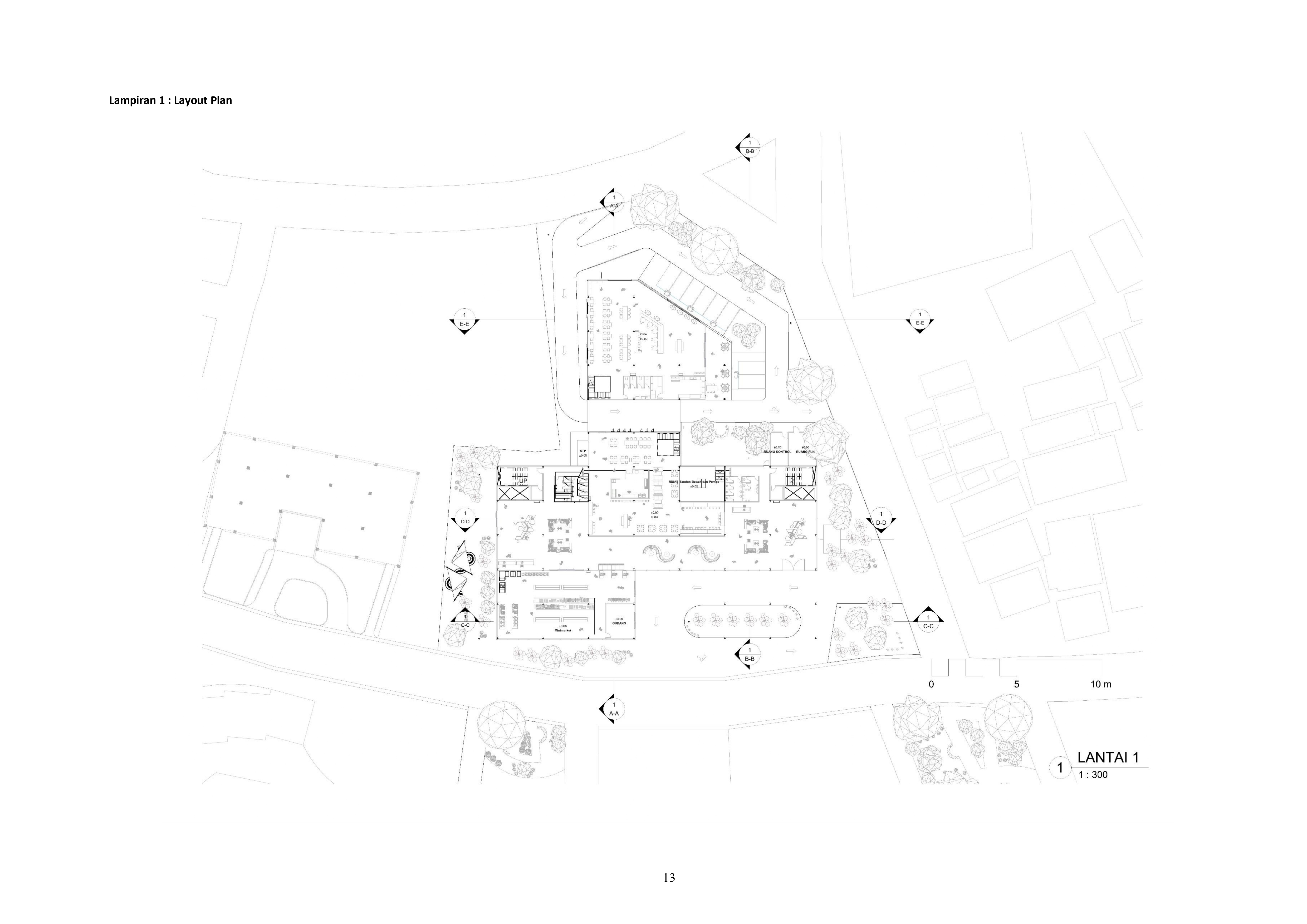
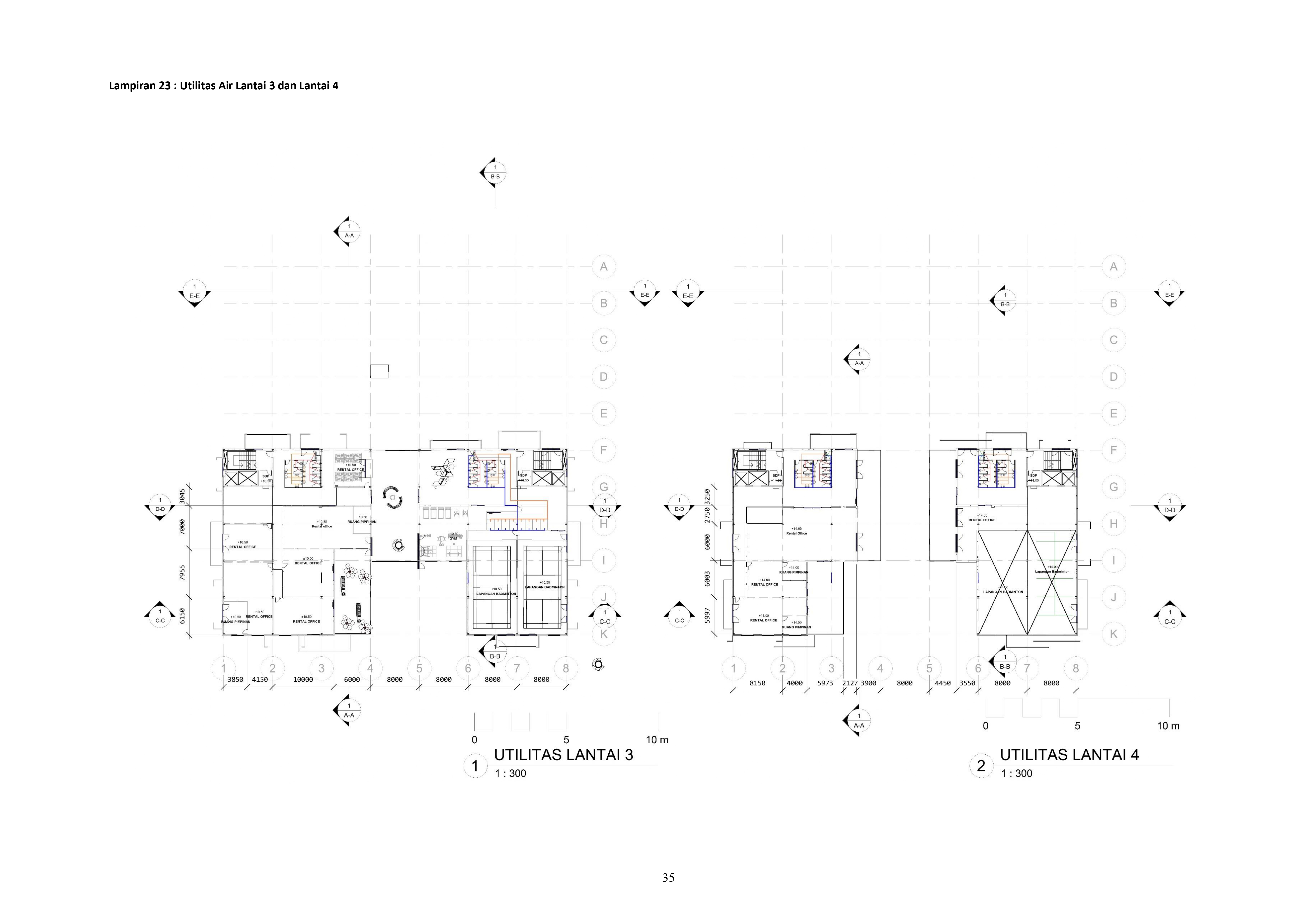
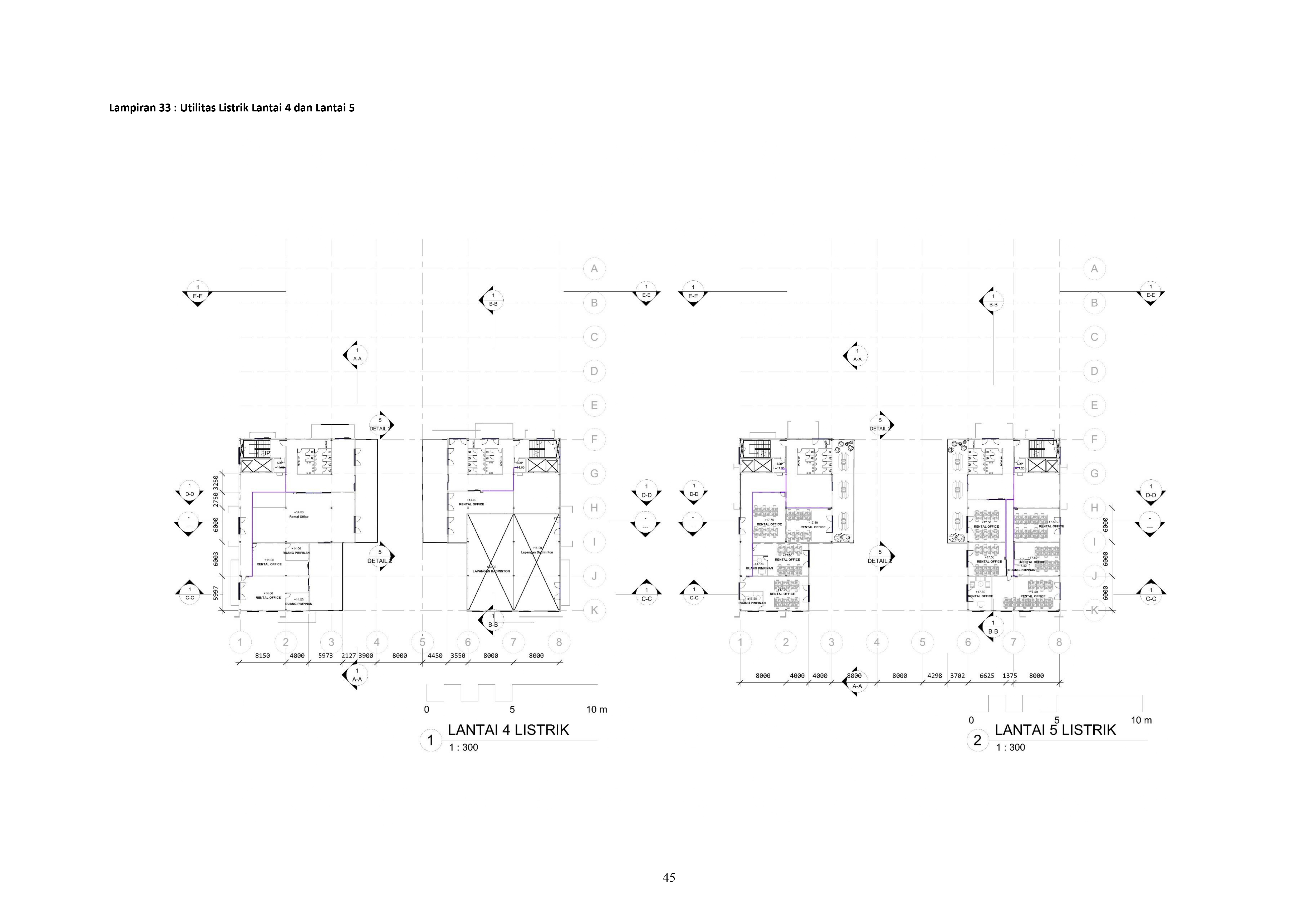
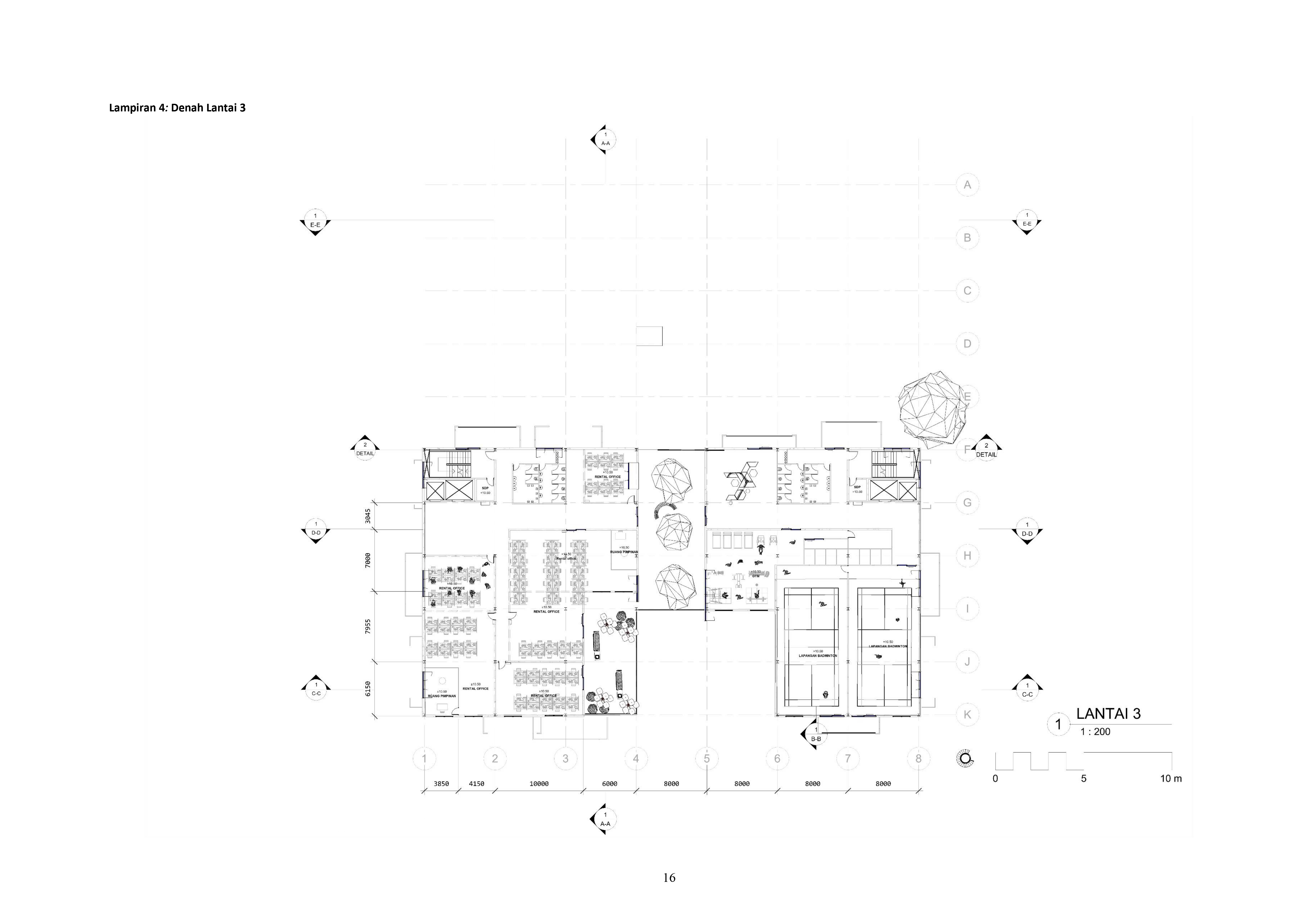
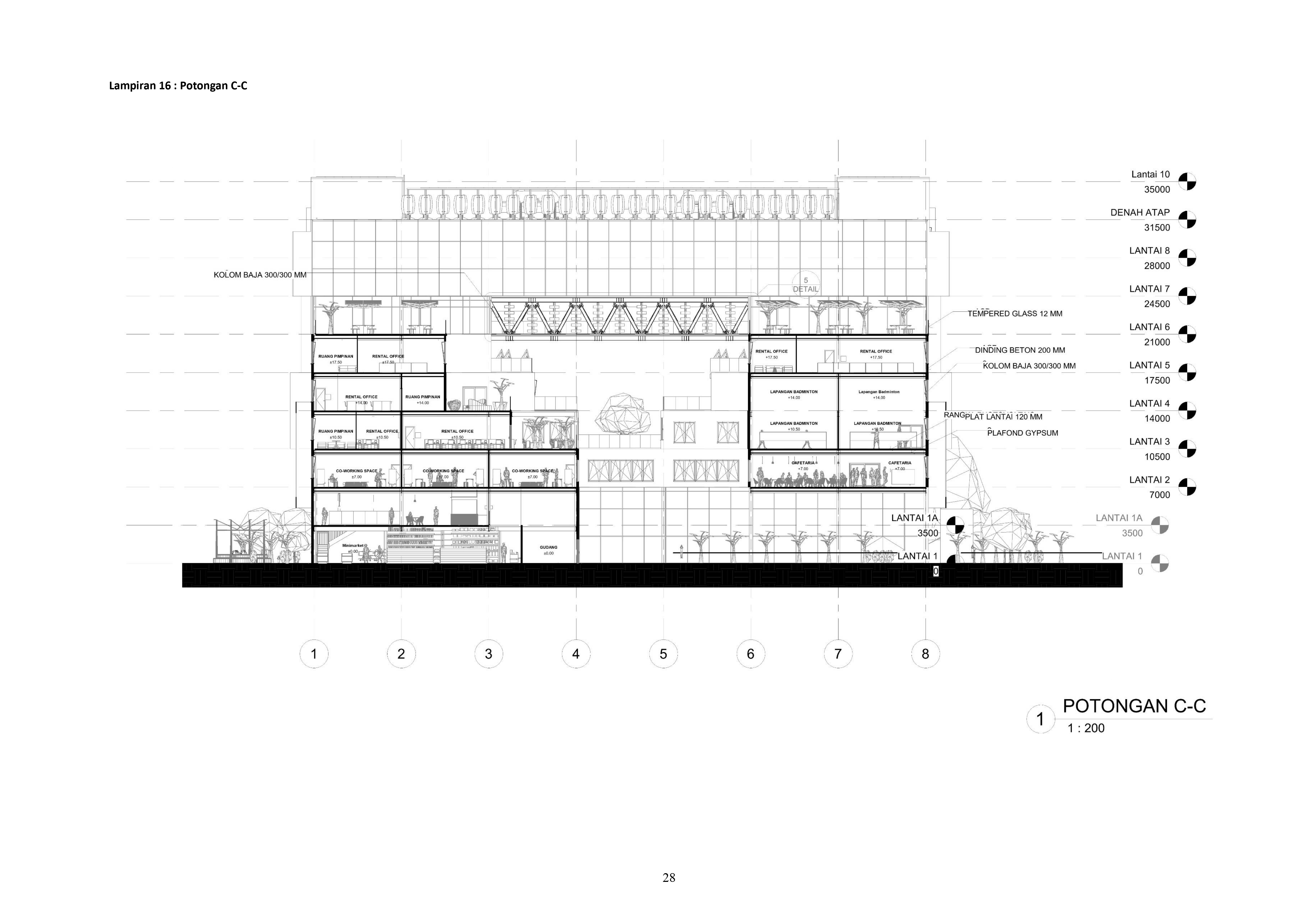
Bangunan perkantoran mixed-used di Surabaya

Lahan semakin terbatas jumlahnya karena jumlah kepadatan penduduk yang semakin meningkat. Pemerintah menyadari bahwa bangunan vertikal mampu mengakomodasi kebutuhan masyarakat seperti hunian maupun ruang publik. Bangunan mixed-used merupakan bangunan yang memiliki beberapa fungsi untuk mengakomodasi kebutuhan masyarakat terutama yang berada di sekitar Kecamatan Wonokromo seperti kantor sewa, swalayan, tempat berolahraga dan tempat makan. Kawasan memiliki kepadatan penduduk cukup tinggi sehingga rasio ruang terbuka hijau tidak memenuhi standar yang ada dan penggunaan energi di kawasan tersebut semakin meningkat dari tahun ke tahun berdasarkan data pelanggan PLN. Pendekatan yang digunakan dalam perancangan adalah renewable energy. Hal ini dikarenakan fungsi bangunan yang mengakomodasi beberapa kegiatan sehingga mengurangi penggunaan lahan secara horizontal dan penggunaan beberapa peralatan yang mampu mengubah sumber daya alam terbarukan seperti matahari dan angin menjadi energi listrik yang nantinya dapat digunakan di dalam tapak untuk mengurangi penggunaan energi listrik. Pembuatan bangunan secara vertikal juga memberikan potensi adanya interaksi secara vertikal dan ruang terbuka hijau di lantai-lantai tertentu pada bangunan.

CINDY PUSPITA Rully Damayanti (Advisor 1); Dr. Feny Elsiana, S.T., M.T. (Examination Committee 1) Universitas Kristen Petra Indonesian Digital Theses Undergraduate Thesis Laporan Perancangan Arsitektur Laporan Perancangan Arsitektur No. 00024519/ARS/2023; Cindy Puspita (B12200020) ARCHITECTURE, MODERN 21ST CENTURY--DESIGNS AND PLANS; OFFICE BUILDINGS-DESIGNS AND PLANS

Files