Fasilitas penitipan lansia di Surabaya

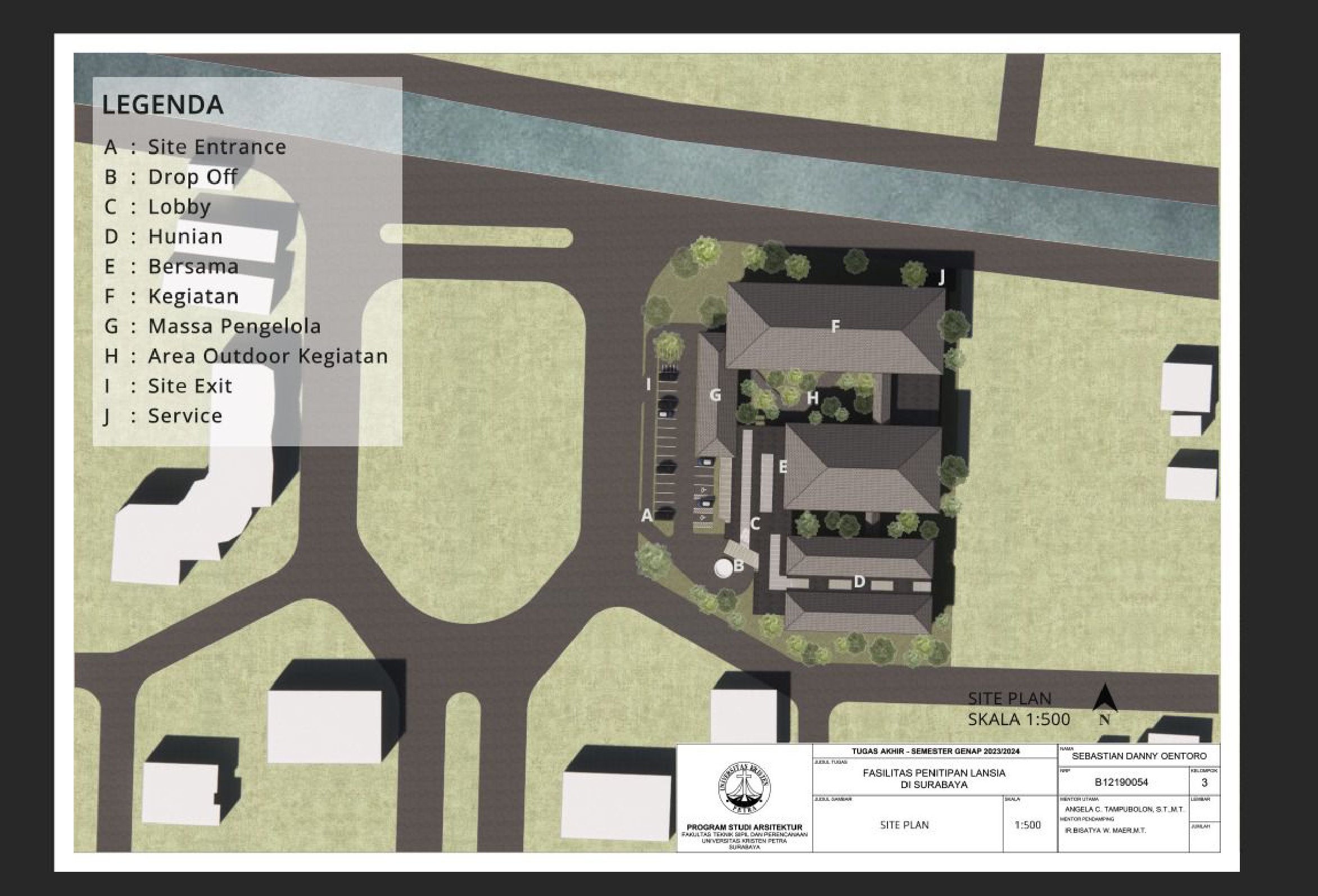
Lansia merupakan golongan usia yang membutuhkan kegiatan sosial. Lansia membutuhkan sebuah komunitas yang sehat dan bisa mendukung aktivitas atau hobi mereka. Fasilitas komunitas bagi lansia yang layak di Surabaya masih sangat jarang ditemukan. Fasilitas penitipan atau daycare bisa menjadi solusi bagi para lansia untuk beraktivitas dan bersosialisasi. Untuk menghadirkan fasilitas yang aman dan nyaman bagi para lansia, digunakan pendekatan restorative yaitu suatu pendekatan perilaku yang menitikberatkan pembentukan ruang untuk mengakomodasi perilaku lansia dan menciptakan sebuah suasana yang memulihkan kesehatan mental melalui integrasi ruang terhadap alam dan pembentukan ruang-ruang aktivitas sosial. Sehingga fasilitas daycare lansia dapat menjadi sebuah pemberhentian untuk bersosialisasi dan relaksasi. Fasilitas ini terdiri dari fasilitas utama yang bisa mencukupi kegiatan atau hobi para lansia seperti melukis, menjahit, bermain musik, membuat kerajinan, dan bermain board game, serta terdapat fasilitas pendukung yang bisa digunakan para lansia untuk menginap. Adapun konsep perancangan meliputi desain yang terintegrasi dengan alam, memperhatikan keamanan dan kenyamanan, serta bisa menciptakan interaksi sosial antara pengguna.

SEBASTIAN DANNY Angela Christysonia Tampubolon, S.T., M.T. (Advisor 1); Ir. Bisatya Widadya Maer, M.T. (Examination Committee 1) Universitas Kristen Petra Indonesian Digital Theses Undergraduate Thesis Laporan Perancangan Arsitektur Laporan Perancangan Arsitektur No. 01024513/ARS/2023; Sebastian Danny (B12190054) OLD AGE HOMES-DESIGNS AND PLANS; OLDER PEOPLE--DWELLINGS--DESIGNS AND PLANS

Files