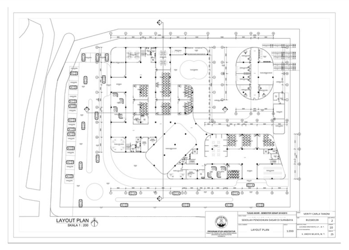
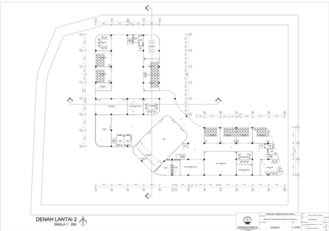
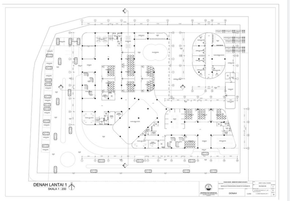
Sekolah pendidikan dasar di Surabaya

Pada umumnya anak usia prasekolah merupakan anak-anak yang akan mengalami perkembangan yang sangat cepat dari segi fisik, kognitif, emosi maupun sosial. Hal ini akan sangat mempengaruhi pertumbuhan anak di masa depan kelak, sehingga fungsi dari taman kanak-kanak dan sekolah dasar menjadi lembaga pendidikan yang formal pertama dan menjadi salah satu sarana untuk memberi dukungan dalam tumbuh kembang anak sesuai dengan sifat-sifat alam. Tujuan dari sekolah dasar memberi pendidikan yang di ajarkan yaitu membantu tumbuh dan kembang anak sejak usia dini sehingga membantu dan mendukung anak menghadapi masa depan serta merancang fasilitas sekolah pada anak usia dini yang nyaman, lengkap dan sesuai dengan standar ketentuan . Pendekatan perilaku yang diterapkan pada anak-anak dengan membantu membangun cara berpikir anak melalui cara proses berpikir dan nalar yang dikembangkan oleh anak sendiri. Alternatif pendalam desain pada rancangan bangunan sekolah pada anak usia pendidikan dasar dengan menciptakan suasana yang baru pada lingkungan tersebut sehingga anak menjadi merasa aman dan nyaman saat berada di lingkungan sekolah.

VERITY CARLA TANONI Luciana Kristanto, S.T., M.T. (Advisor 1); Ir. Andhi Wijaya, M.T. (Advisor 2); Altrerosje Asri, S.T., M.T. (Examination Committee 1); Ir. Markus Ignatio Aditjipto, M.Arch. (Examination Committee 2) Universitas Kristen Petra Indonesian Digital Theses Undergraduate Thesis Laporan Perancangan Arsitektur Laporan Perancangan Arsitektur No. 01024509/ARS/2023; Verity Carla Tanoni (B12180139) ELEMENTARY SCHOOL BUILDINGS--DESIGNS AND PLANS; SCHOOL BUILDINGS--DESIGNS AND PLANS

Files