Fasilitas edukasi wisata dan pertanian hidroponik di Malang

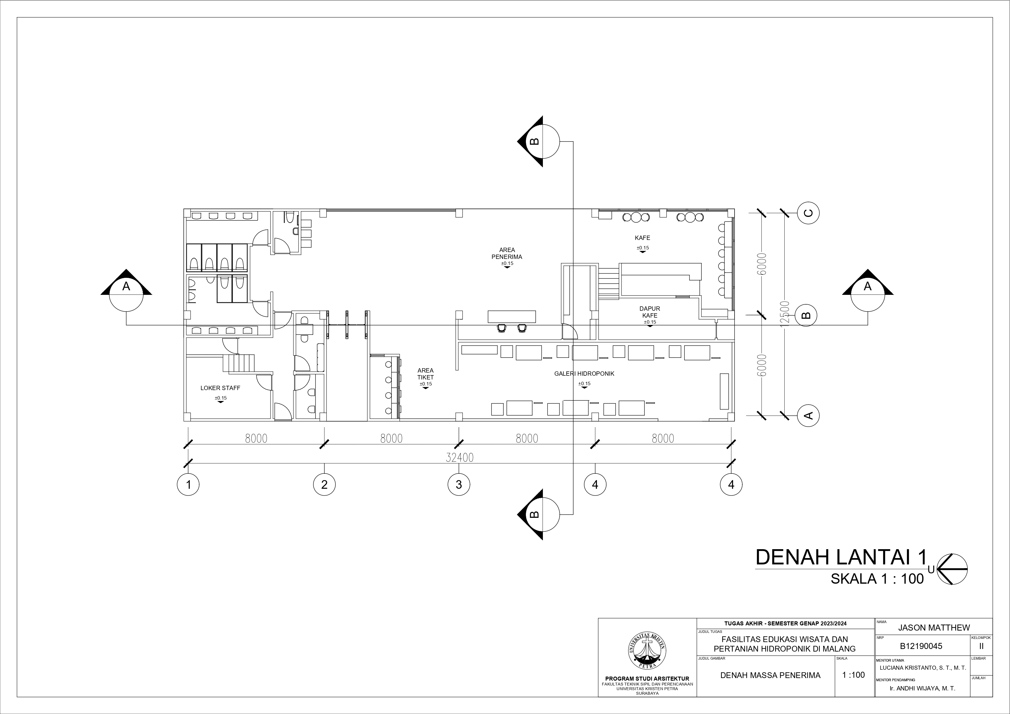
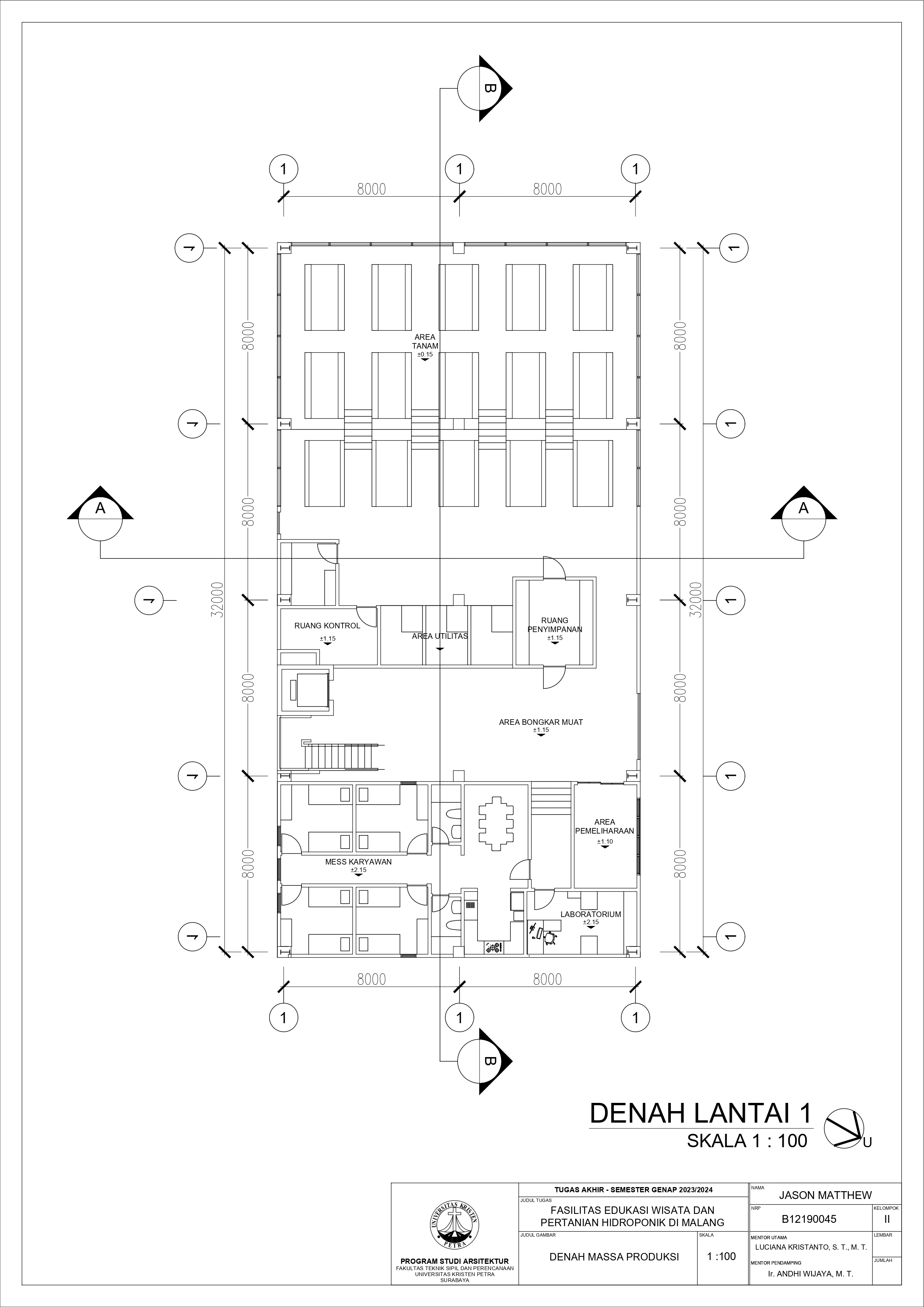
Pertumbuhan jumlah penduduk Indonesia menyebabkan terjadinya peningkatan kebutuhan pangan. Kondisi ketahanan pangan Indonesia yang cenderung belum stabil dan sektor pertanian yang memiliki banyak masalah akibat urbanisasi, perubahan cuaca secara ekstrim, dan stigma negatif masyarakat akan bidang pertanian mendesak akan adanya solusi baru yang inovatif. Hal inilah yang melatarbelakangi perancangan fasilitas edukasi wisata dan pertanian hidroponik di Malang. Gagasan awal dalam mendesain fasilitas ini adalah mengintegrasikan elemen arsitektur dengan pertanian hidroponik untuk menciptakan area edukasi yang mampu melibatkan pengunjung dalam aktivitas dan pengalaman ruang yang menarik. Masalah perancangan yang timbul dari gagasan tersebut adalah merumuskan suatu desain yang bisa mencukupi kebutuhan tanaman untuk bertumbuh dengan tetap memperhatikan kenyamanan termal pengunjung saat beraktivitas di dalamnya. Pendekatan sains bangunan dan teori bioklimatik dinilai sesuai untuk memecahkan masalah perancangan yang ada. Pendekatan sains bangunan diterapkan pada penataan orientasi bangunan, bentuk massa, fasad bangunan, dan area tanam hidroponik yang terintegrasi dengan elemen arsitekur sehingga memberikan pengalaman baru bagi pengunjung.

JASON MATTHEW Luciana Kristanto, S.T., M.T. (Advisor 1); Ir. Andhi Wijaya, M.T. (Advisor 2); Altrerosje Asri, S.T., M.T. (Examination Committee 1); Ir. Markus Ignatio Aditjipto, M.Arch. (Examination Committee 1) Universitas Kristen Petra Indonesian Digital Theses Undergraduate Thesis Laporan Perancangan Arsitektur Laporan Perancangan Arsitektur No. 06024512/ARS/2023; Jason Matthew (B12190045) EDUCATION PARKS--DESIGNS AND PLANS; RECREATION CENTERS-DESIGNS AND PLANS

Files