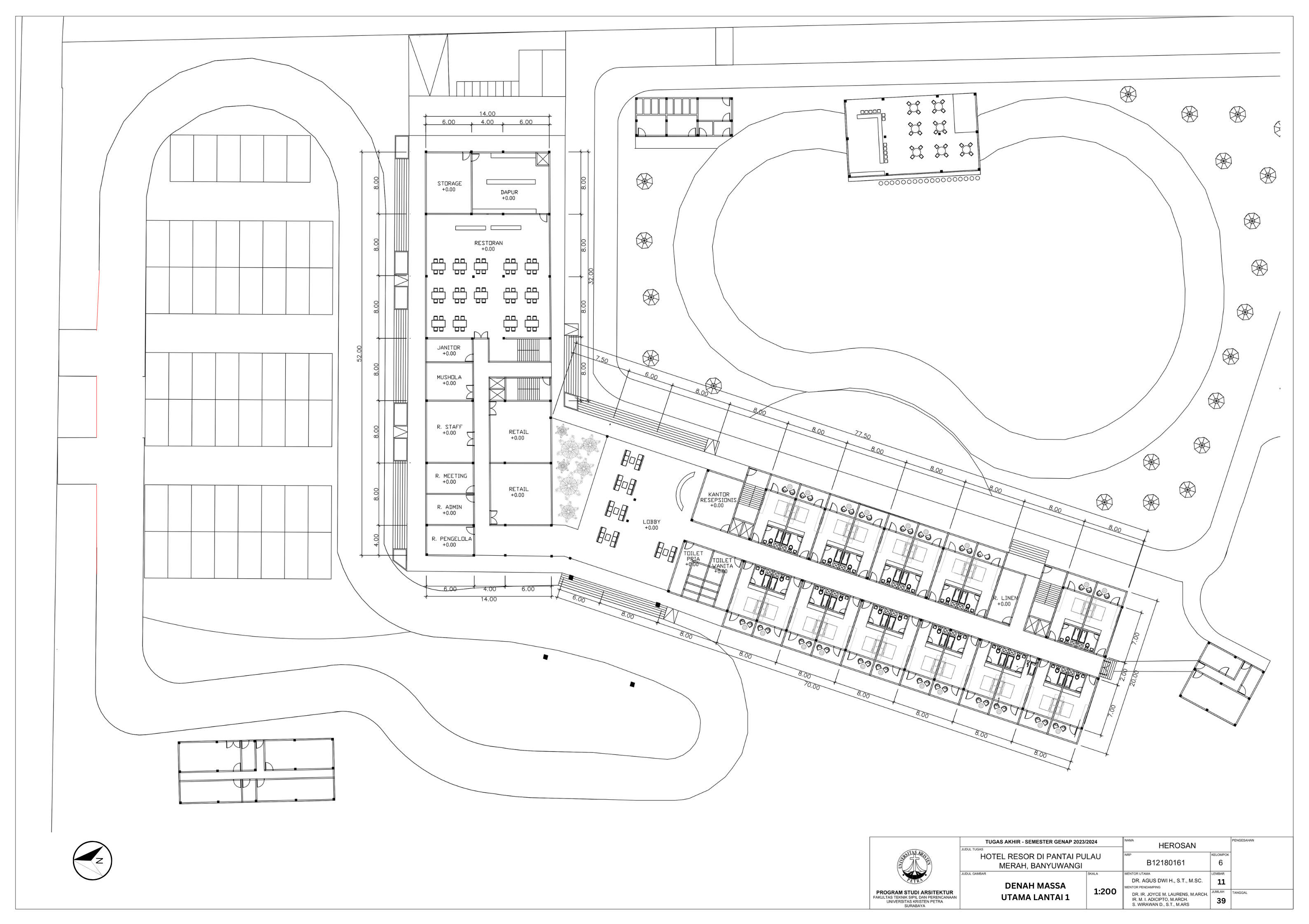
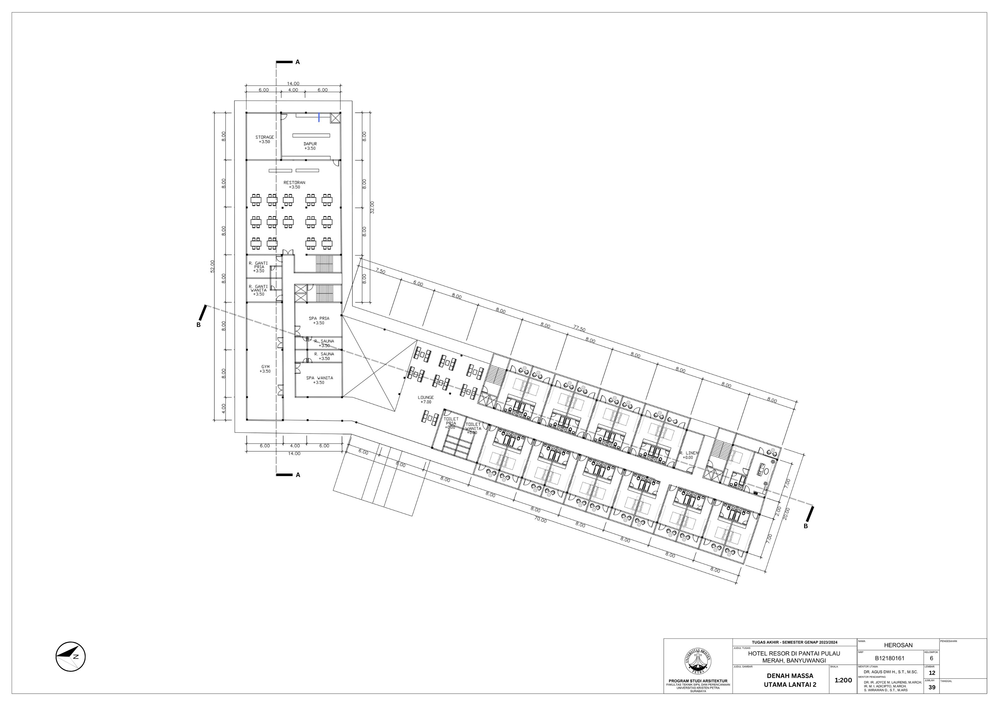
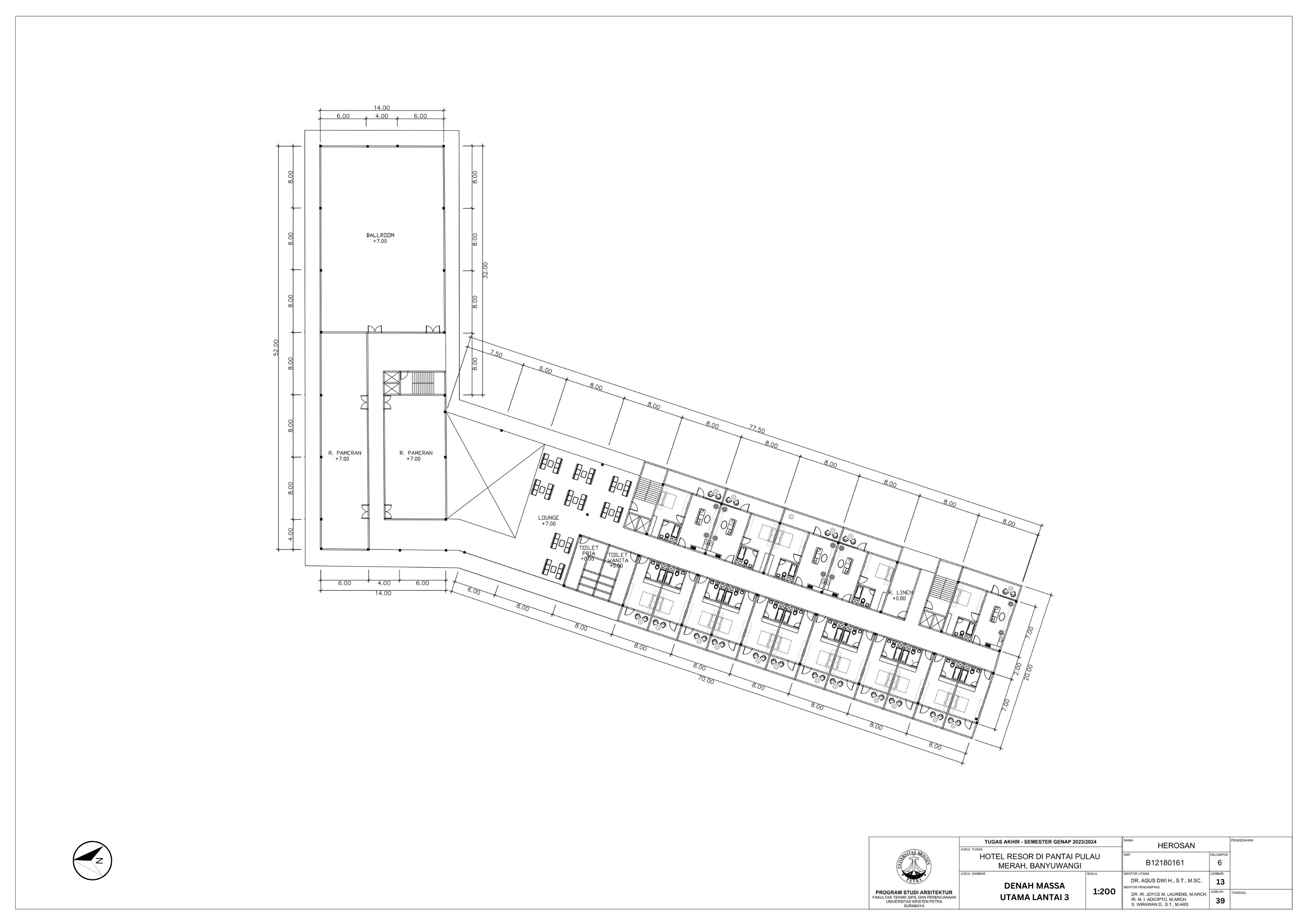
Hotel resor di Pantai Pulau Merah, Banyuwangi

Kabupaten Banyuwangi di Provinsi Jawa Timur memiliki banyak potensi wisata. Salah satunya adalah Pantai Pulau Merah yang terletak di selatan Kabupaten Banyuwangi. Pantai ini terkenal dengan potensi ombak yang dapat digunakan untuk berselancar. Hal ini berpotensi mendatangkan wisatawan domestik maupun wisatawan luar negeri untuk berselancar dan menikmati keindahan Pantai Pulau Merah. Hotel Resort di Pantai Pulau Merah yang diharapkan dapat mengakomodasi kebutuhan pengunjung yang ingin menikmati keindahan alam Pantai Pulau Merah dan ingin mencoba berselancar di ombak Pantai Pulau Merah, terlebih lagi sebagai destinasi wisata baru yang mampu menarik lebih banyak lagi wisatawan domestik maupun luar negeri untuk datang berkunjung. Selain itu juga mampu memperkenalkan kebudayaan Banyuwangi kepada wisatawan melalui gaya arsitektur neo-vernakular rumah adat Osing beserta elemen elemen pendukungnya. Masalah perancangan ini adalah bagaimana menciptakan desain hotel resor dengan standar bintang 4 dengan konsep konsep arsitektur neo vernakular rumah adat osing. Pendekatan perancangan ini adalah neo vernakular rumah adat osing.

HEROSAN CORNELIUS EFFENDY Dr. Ir. Agus Dwi Hariyanto, S.T., M.Sc. (Advisor 1); Joyce M.Laurens (Advisor 2); Ir. Markus Ignatio Aditjipto, M.Arch. (Advisor 3); Ir. Stephanus Wirawan Dharmatanna, S.T., M.Ars. (Advisor 4); Altrerosje Asri, S.T., M.T. (Examination Committee 1); Ir. Samuel Hartono, M.Sc. (Examination Committee 2); Elvina Shanggrama Wijaya, S.T., M.T. (Examination Committee 3) Universitas Kristen Petra Indonesian Digital Theses Undergraduate Thesis Laporan Perancangan Arsitektur Laporan Perancangan Arsitektur No. 00024602/ARS/2024; Herosan Cornelius Effendy (B12180161) HOTELS--DESIGNS AND PLANS; RESORTS--DESIGNS AND PLANS

Files