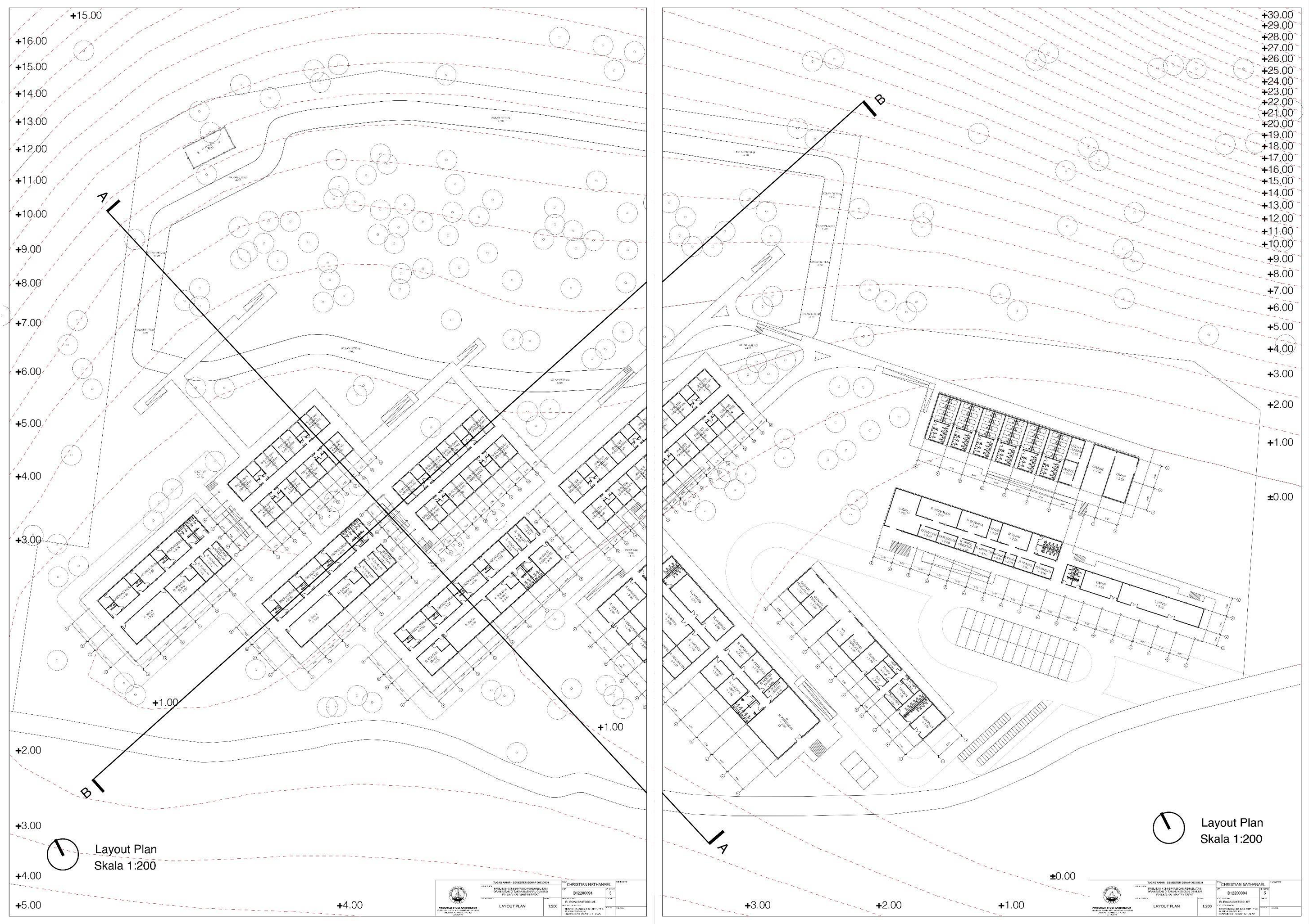
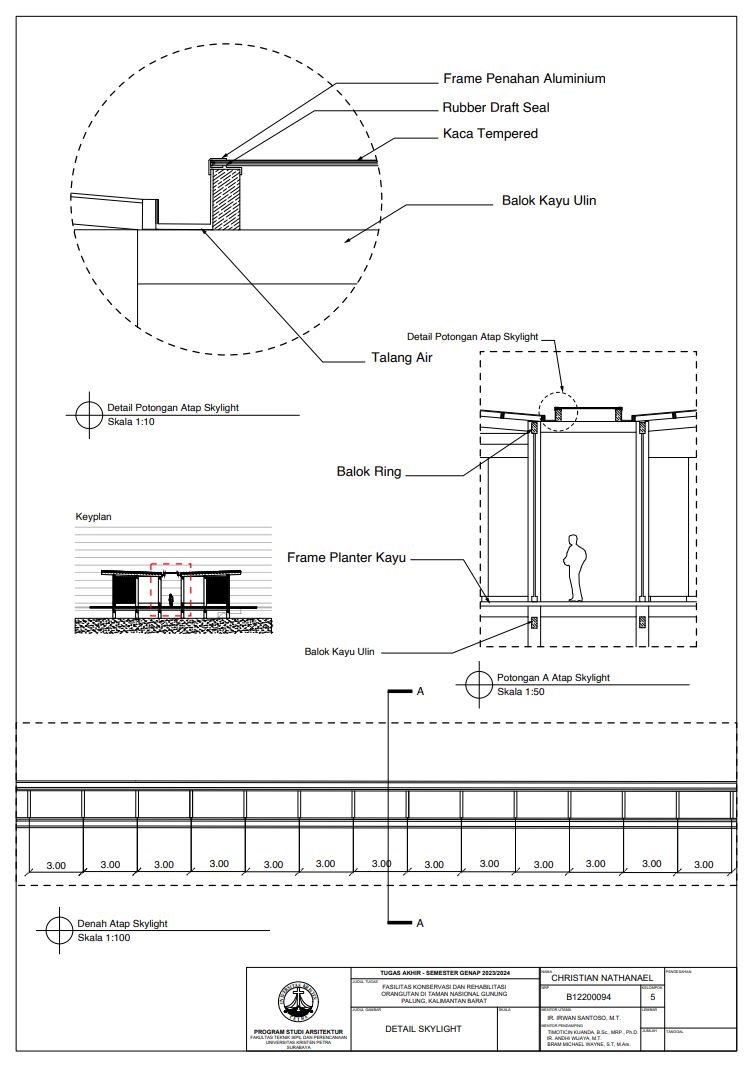
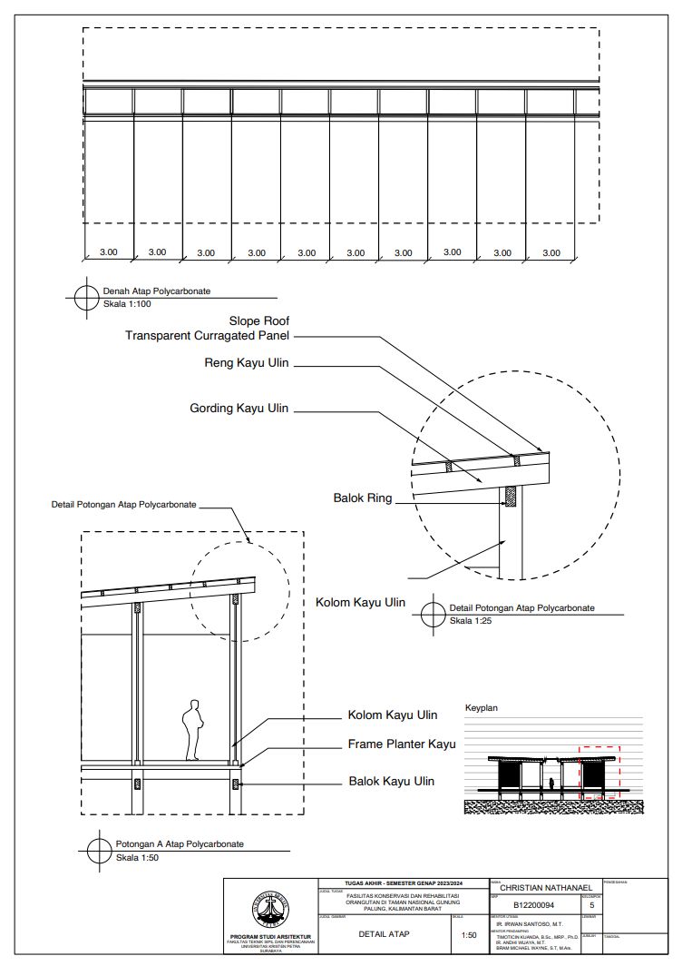
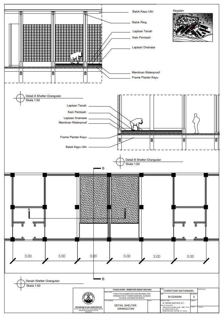
Fasilitas konservasi dan rehabilitasi orangutan di Taman Nasional Gunung Palung, Kalimantan Barat

Kalimantan, pulau terbesar ketiga di dunia dan bagian dari Indonesia, dikenal sebagai "paru-paru dunia" karena hutan hujan tropisnya yang luas dan keanekaragaman hayati yang tinggi, salah satunya Taman Nasional Gunung Palung yang terletak di Kalimantan Barat. Taman nasional ini menjadi konservasi penting bagi orangutan, menampung sekitar 10% dari populasi dunia atau sekitar 2.200 individu. Meski begitu, Gunung Palung menghadapi masalah kebakaran, deforestasi hingga penurunan populasi orangutan akibat pemanasan global dan perburuan ilegal. Untuk mengatasi ini, diperlukan fasilitas konservasi dan rehabilitasi yang berfokus pada keberlanjutan kehidupan orangutan, mengurangi potensi gundulnya hutan serta perburuan. Pembangunan fasilitas ini harus mempertimbangkan dampak negatif terhadap ekosistem, menggunakan pendekatan ecodesign Ken Yeang yang mengintegrasikan bangunan dengan lingkungan secara fisik, sistemik, dan temporal.

CHRISTIAN NATHANAEL LUKIANTO Ir. Irwan Santoso, M.T. (Advisor 1); Timoticin Kwanda (Advisor 2); Ir. Andhi Wijaya, M.T. (Advisor 3); Bram Michael Wayne, S.T., M.Ars. (Advisor 4); Gunawan Tanuwidjaja, S.T., M.Sc., Ph.D. (Examination Committee 1); Roni Anggoro, S.T., M.A.Arch. (Examination Committee 2); Danny Santoso Mintorogo (Examination Committee 3); Ir. Bisatya Widadya Maer, M.T. (Examination Committee 4) Universitas Kristen Petra Indonesian Digital Theses Undergraduate Thesis Laporan Perancangan Arsitektur Laporan Perancangan Arsitektur No. 09024586/ARS/2024; Christian Nathanael Lukianto (B12200094) PROBOSCIS MONKEY CONSERVATION FACILITIES; WILDLIFE CONSERVATION; WILDLIFE REHABILITATION--DESIGNS AND PLANS

Files