Supermarket otomotif di Surabaya

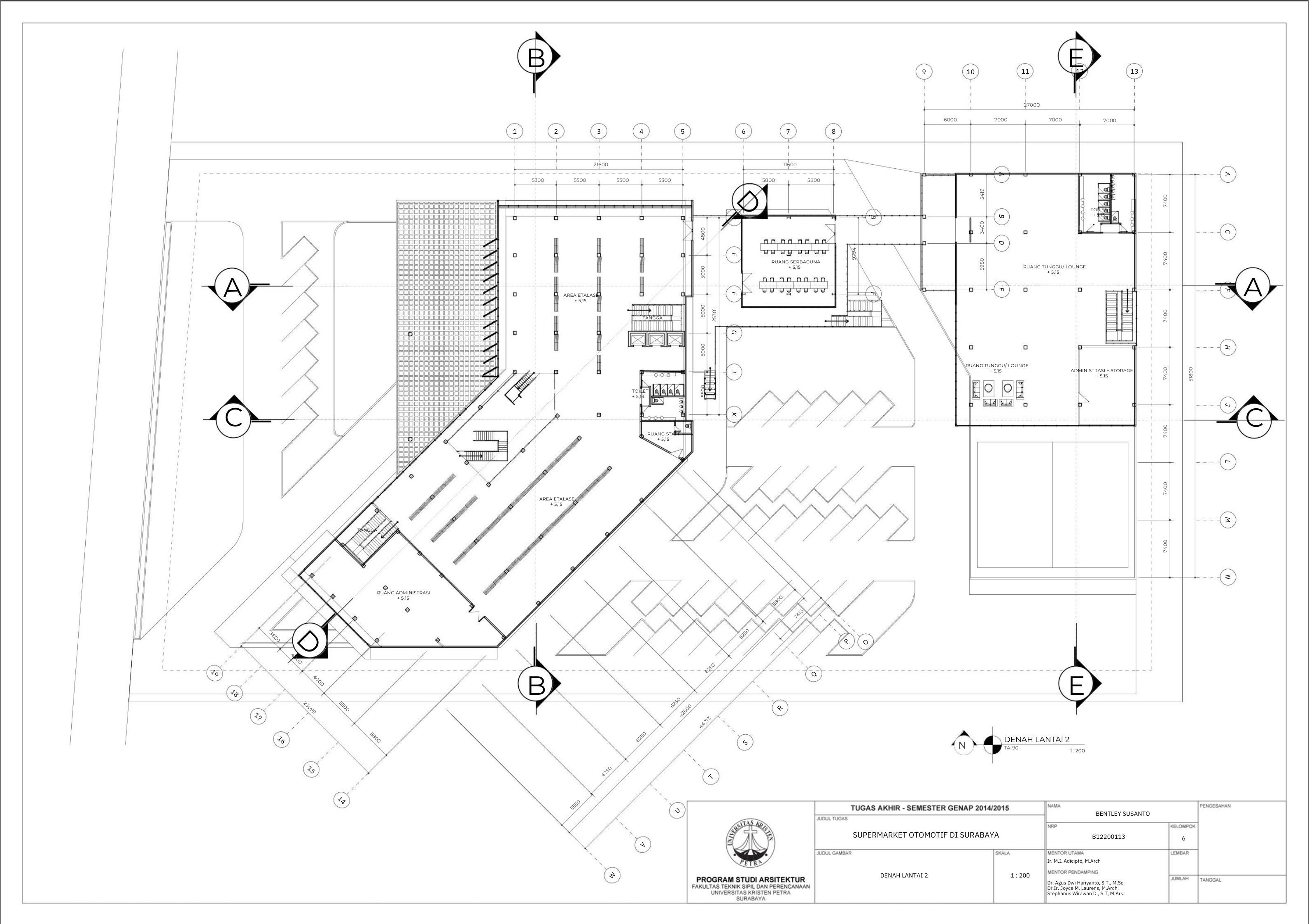
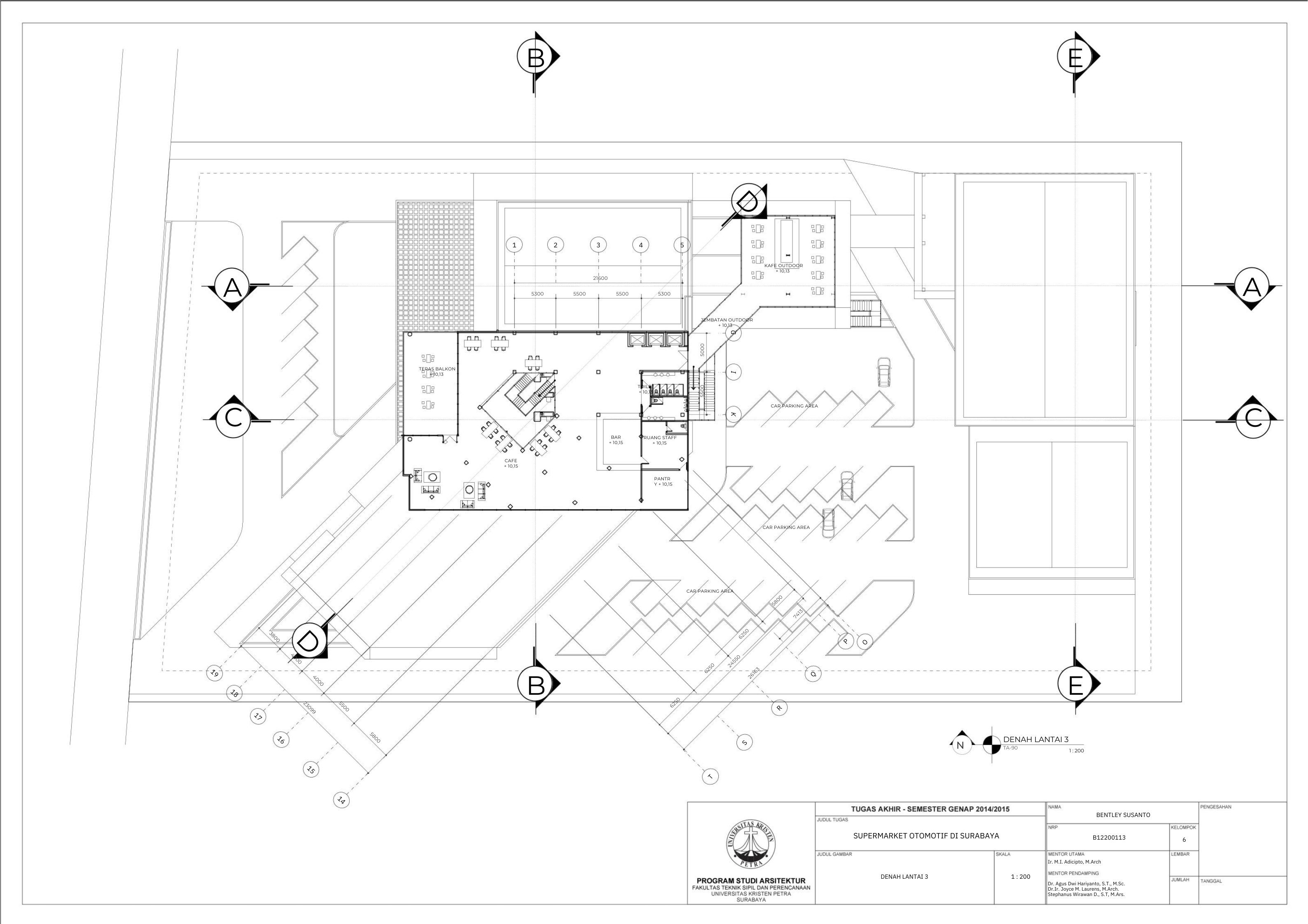
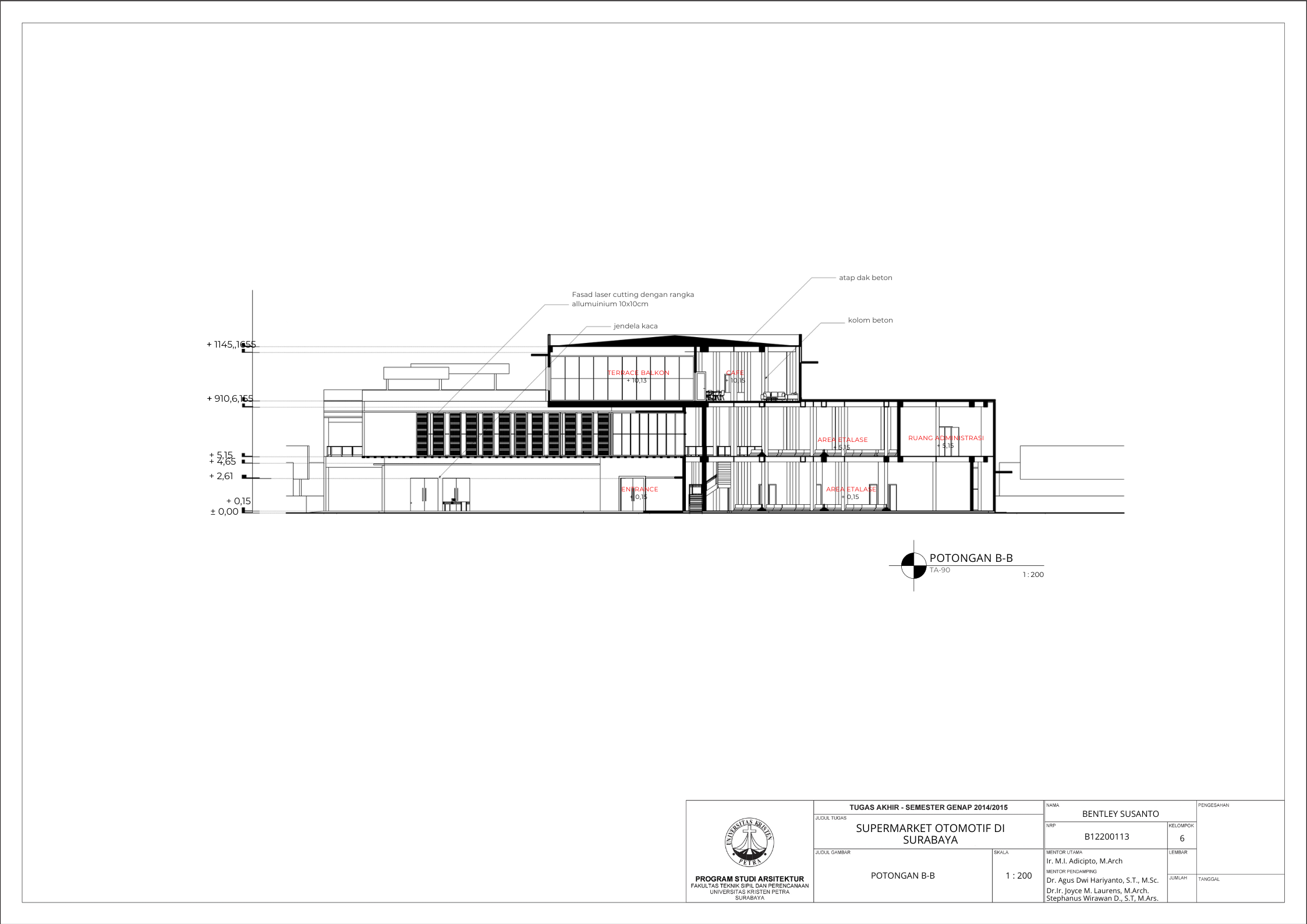
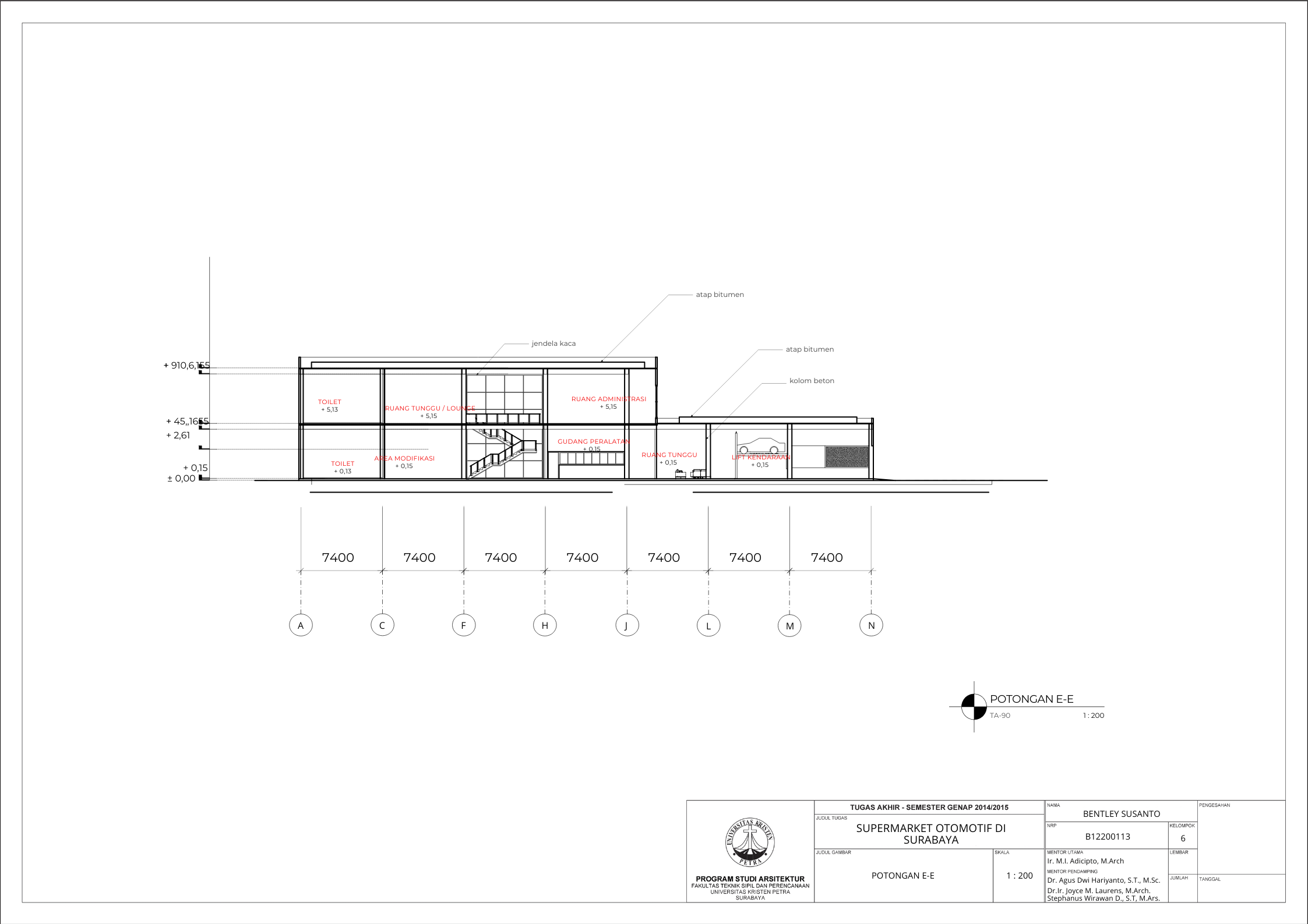
Pengenalan dunia otomotif bagi warga Surabaya telah ada sejak lama. Namun seiring dengan perkembangan zaman, dunia otomotif semakin berkembang dan komunitas mobil di Surabaya semakin bertambah. Dapat dilihat dari acara pameran otomotif yang beberapa kali diadakan di Surabaya seperti GIIAS dan IIMS yang memberikan hasil yang positif terhadap nilai penjualan mobil yang terus meningkat. mengikuti tren modifikasi dan seiring dengan banyaknya penggemar otomotif, terciptalah masalah baru yaitu semakin banyak komunitas mobil yang ada di Surabaya yang terkadang mengganggu aktivitas orang lain karena mereka biasanya menggunakan fasilitas umum seperti jalan raya dan parkiran umum, dan kebutuhan akan sebuah tempat yang mampu mewadahi kebutuhan penghobi ini. Maka dari itu dengan adanya fasilitas ini dapat menampung para komunitas mobil melakukan kegiatan tersebut, terutama dengan kebutuhan barang sparepart modifikasi, variasi, dan restorasi kendaraan bermotor khususnya mobil. fasilitas direncanakan di jalan Ir. Dr. Soekarno, Surabaya timur.

BENTLEY SUSANTO Ir. Markus Ignatio Aditjipto, M.Arch. (Advisor 1); Dr. Ir. Agus Dwi Hariyanto, S.T., M.Sc. (Advisor 2); Joyce M.Laurens (Advisor 3); Ir. Stephanus Wirawan Dharmatanna, S.T., M.Ars. (Advisor 4); Ir. Samuel Hartono, M.Sc. (Examination Committee 1); Altrerosje Asri, S.T., M.T. (Examination Committee 2); Elvina Shanggrama Wijaya, S.T., M.T. (Examination Committee 3) Universitas Kristen Petra Indonesian Digital Theses Undergraduate Thesis Laporan Perancangan Arsitektur Laporan Perancangan Arsitektur No. 02024604/ARS/2024; Bentley Susanto (B12200113) SHOPPING CENTERS--DESIGNS AND PLANS

Files