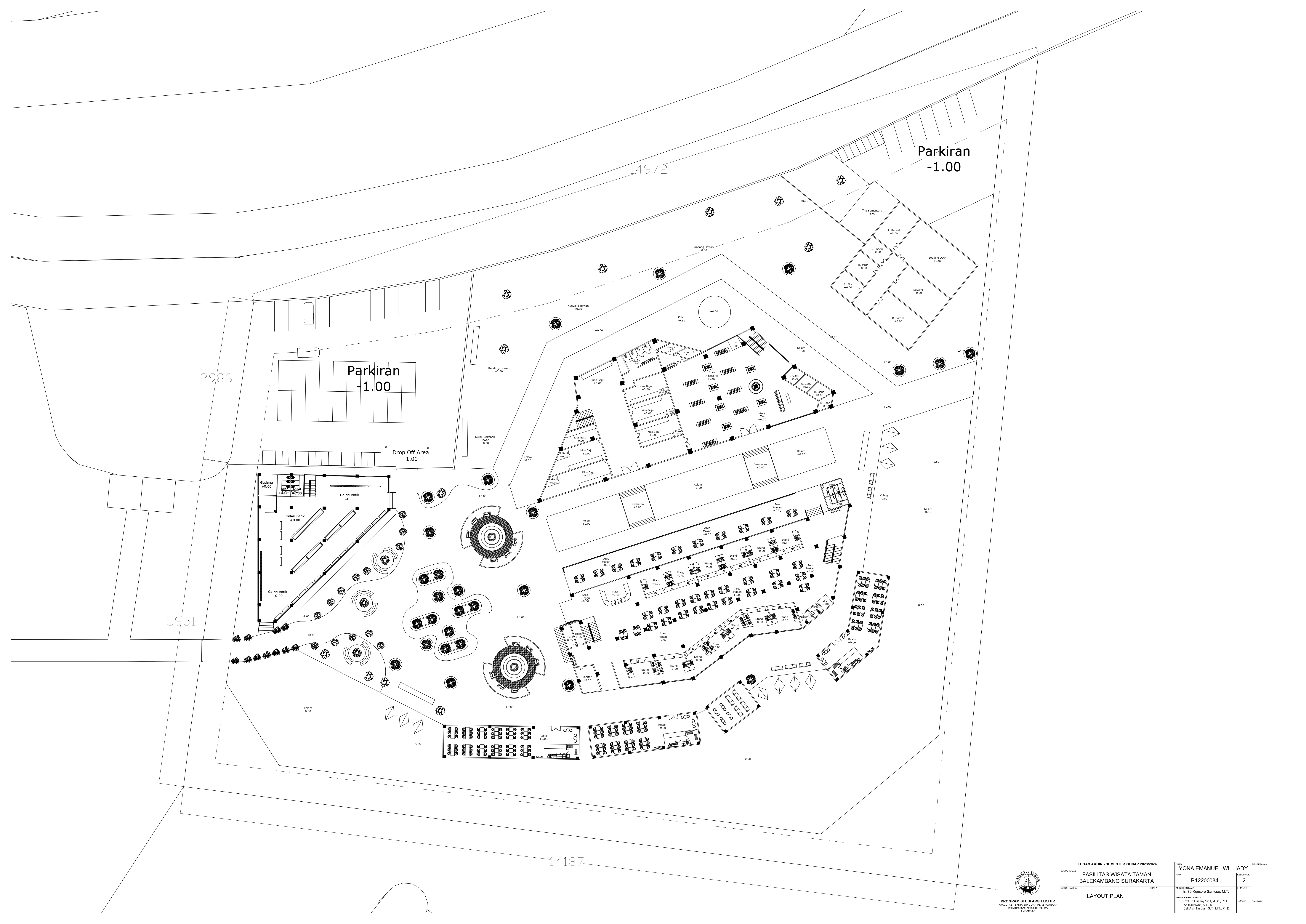
Fasilitas wisata taman Balekambang Surakarta

Tugas akhir ini bertujuan untuk menjalankan revitalisasi taman Balekambang yang bertujuan untuk mengembangkan fasilitas wisata di taman Balekambang Surakarta, dengan fokus pada pengembangan dan peningkatan wisata khas dari Surakarta. Adapun tujuan utama proposal ini adalah menciptakan lingkungan yang mendukung pertumbuhan daerah wisata di taman Balekambang Surakarta, meningkatkan daya tarik wisatawan, dan memberikan pengalaman wisata yang memuaskan bagi penduduk setempat dan wisatawan. Proposal ini mencakup langkah-langkah konkrit dalam pengembangan infrastruktur wisata, pelatihan tenaga kerja, promosi setempat, dan pengembangan inovasi infrastruktur. Target dari fasilitas wisata ini ialah parawisata dan masyarakat sekitar yang ingin menikmati hal-hal khas Surakarta agar lebih mudah untuk menemukan dan dapat menikmati semua ciri khas dari Surakarta. Melalui usaha pembangunan fasilitas wisata di taman Balekambang ini diharapkan parawisata dan masyarakat sekitar yang ingin menikmati hal khas dari Surakarta akan lebih mudah untuk menikmati semua yang khas dari Surakarta.

YONA EMANUEL WILLIADY Lilianny Sigit Arifin (Advisor 1); Anik Juniwati (Advisor 2); Esti Asih Nurdiah, S.T., M.T., Ph.D. (Advisor 3); Ir. Stanislaus Kuntjoro Santoso, M.T. (Advisor 4); Dr. Feny Elsiana, S.T., M.T. (Examination Committee 1); Angela Christysonia Tampubolon, S.T., M.T. (Examination Committee 3); Ir. Handinoto, M.T. (Examination Committee 4) Universitas Kristen Petra Indonesian Digital Theses Undergraduate Thesis Laporan Perancangan Arsitektur Laporan Perancangan Arsitektur No. 00024604/ARS/2024; Yona Emanuel Williady (B12200084) AMUSEMENT PARKS; AMUSEMENT PARKS--DESIGNS AND PLANS

Files