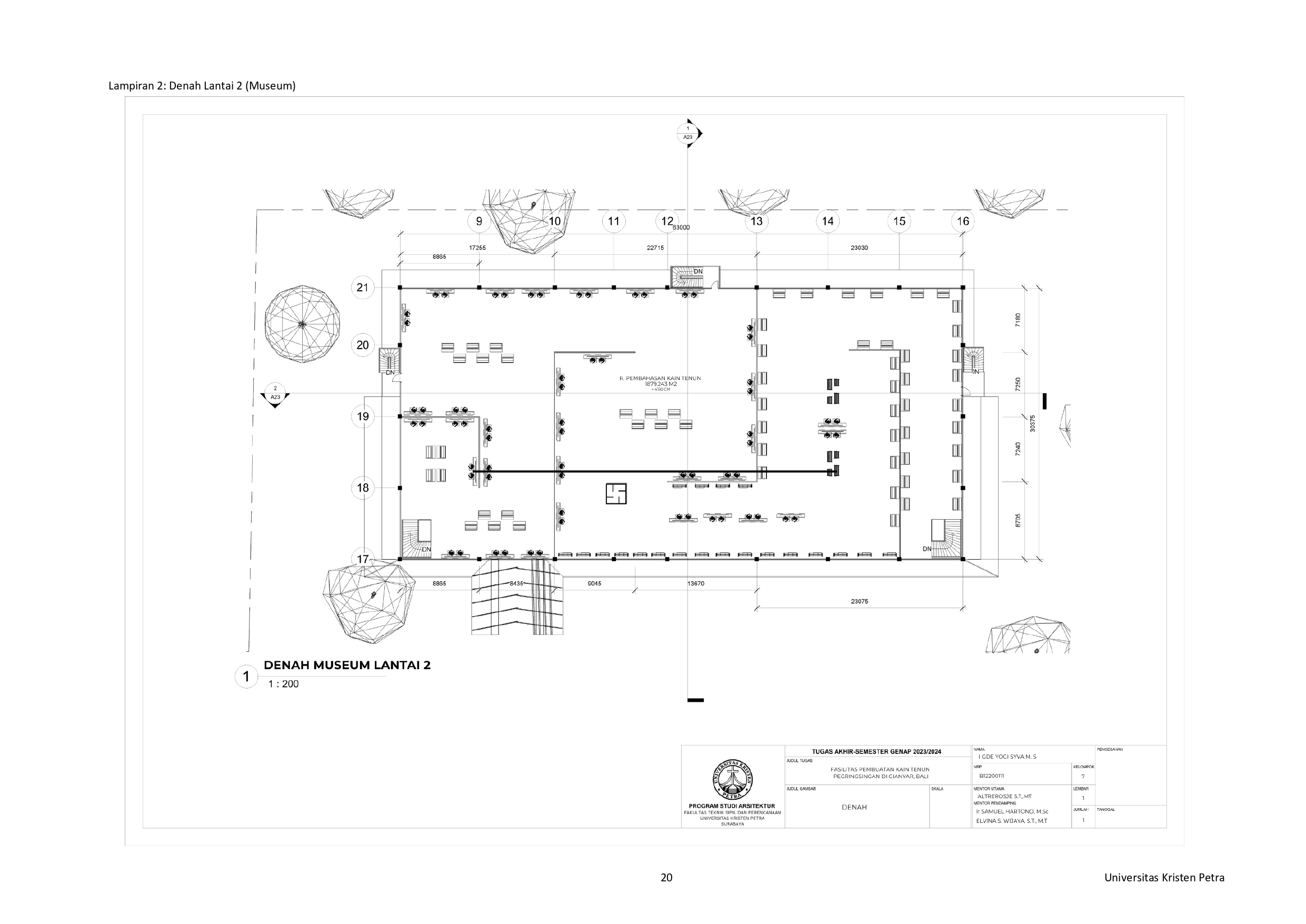
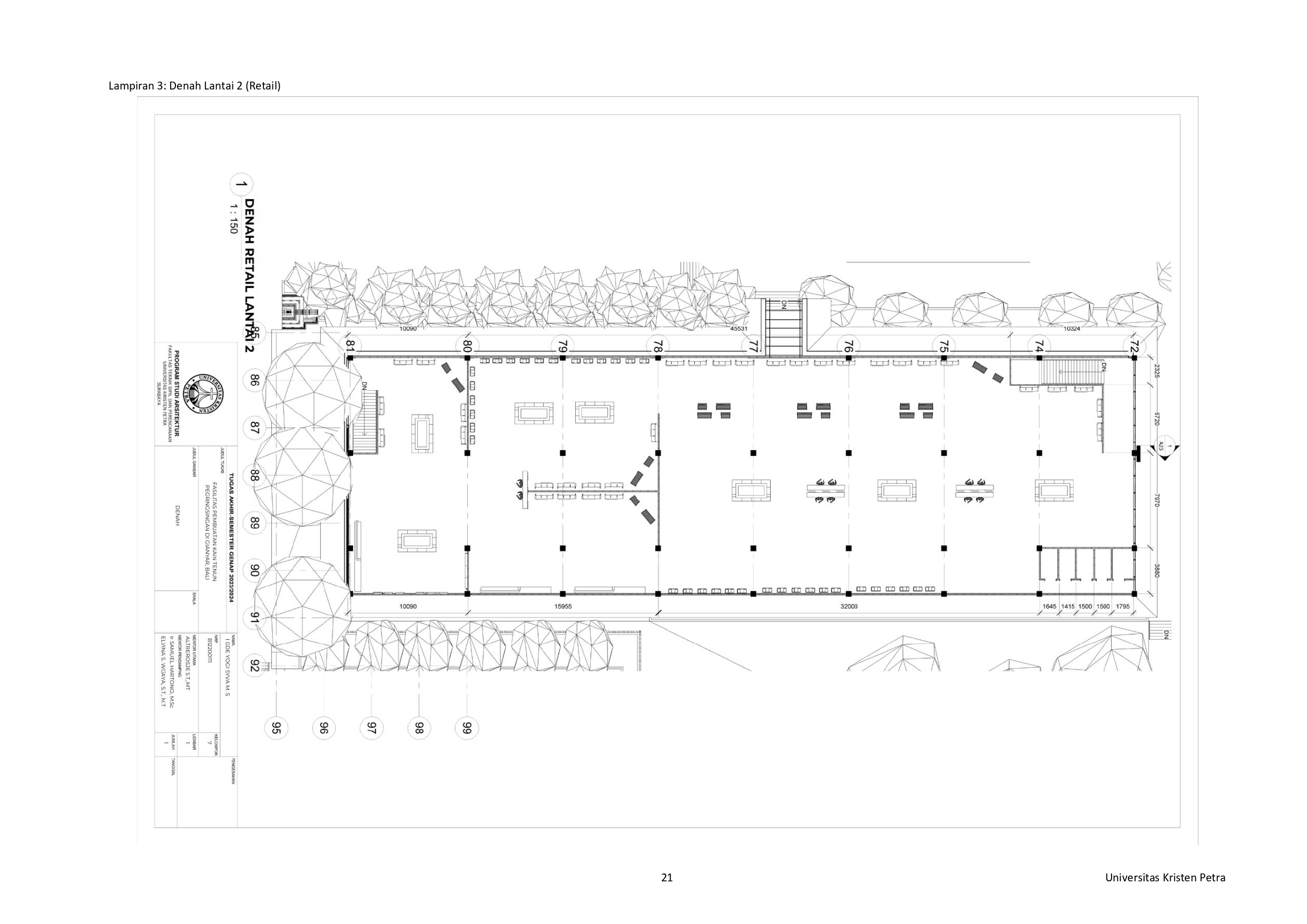
Fasilitas edukasi pembuatan kain tenun di Gianyar

Kain tenun Pegringsingan adalah sebuah warisan budaya indonesia yang berasalah dari desa tenganan Pegringsingan, Bali. Kain tenun memiliki daya tarik dan menjadi perhatian para wisatawan karena keindahan dari kain tenun. Kain tenun mempunyai potensi yang tinggi khususnya dalam bidang edukasi, karena teknik yang digunakan dalam pembuatan kain sangat jarang dan membutuhkan waktu yang lama untuk membuat satu kain dengan begitu warisan ini dinobatkan sebagai warisan tak benda oleh UNESCO. Aktivitas pariwisata di desa wisata Tenganan mengalami penurunan drastis minat wisatawan lokal maupun mancanegara dikarenakan lokasi yang jauh dari perkotaan. Dengan begitu perencanaan fasilitas edukasi bertujuan untuk memberikan area edukasi alternatif mengenai kain tenun Pegringsingan tanpa menghilangkan kesakralan dari kain tenun Pegringsingan, pengunjung dapat belajar mengenai pembuatan kain tenun dari memintal, mewarnai hingga menenun. Informasi tersebut diakomodasi workshop dan museum untuk retail sebagai penunjang. Dari perencanaan desain, pendekatan yang digunakan adalah pendeketan vernakular untuk mempertahankan suasana Desa Tenganan Pegringsingan.

I GDE YOGI SYVA MAHENDRA SUASTIKA Altrerosje Asri, S.T., M.T. (Advisor 1); Elvina Shanggrama Wijaya, S.T., M.T. (Advisor 2); Ir. Samuel Hartono, M.Sc. (Advisor 3) Universitas Kristen Petra Indonesian Digital Theses Undergraduate Thesis Laporan Perancangan Arsitektur Laporan Perancangan Arsitektur No. 09024597/ARS/2024; I Gde Yogi Syva Mahendra Suastika (B12200111) EDUCATION PARKS--DESIGNS AND PLANS; RECREATION CENTERS--DESIGNS AND PLANS

Files