Ketersediaan akses penyandang tuna daksa dalam interior apartemen: studi kasus apartemen Vertu di Surabaya

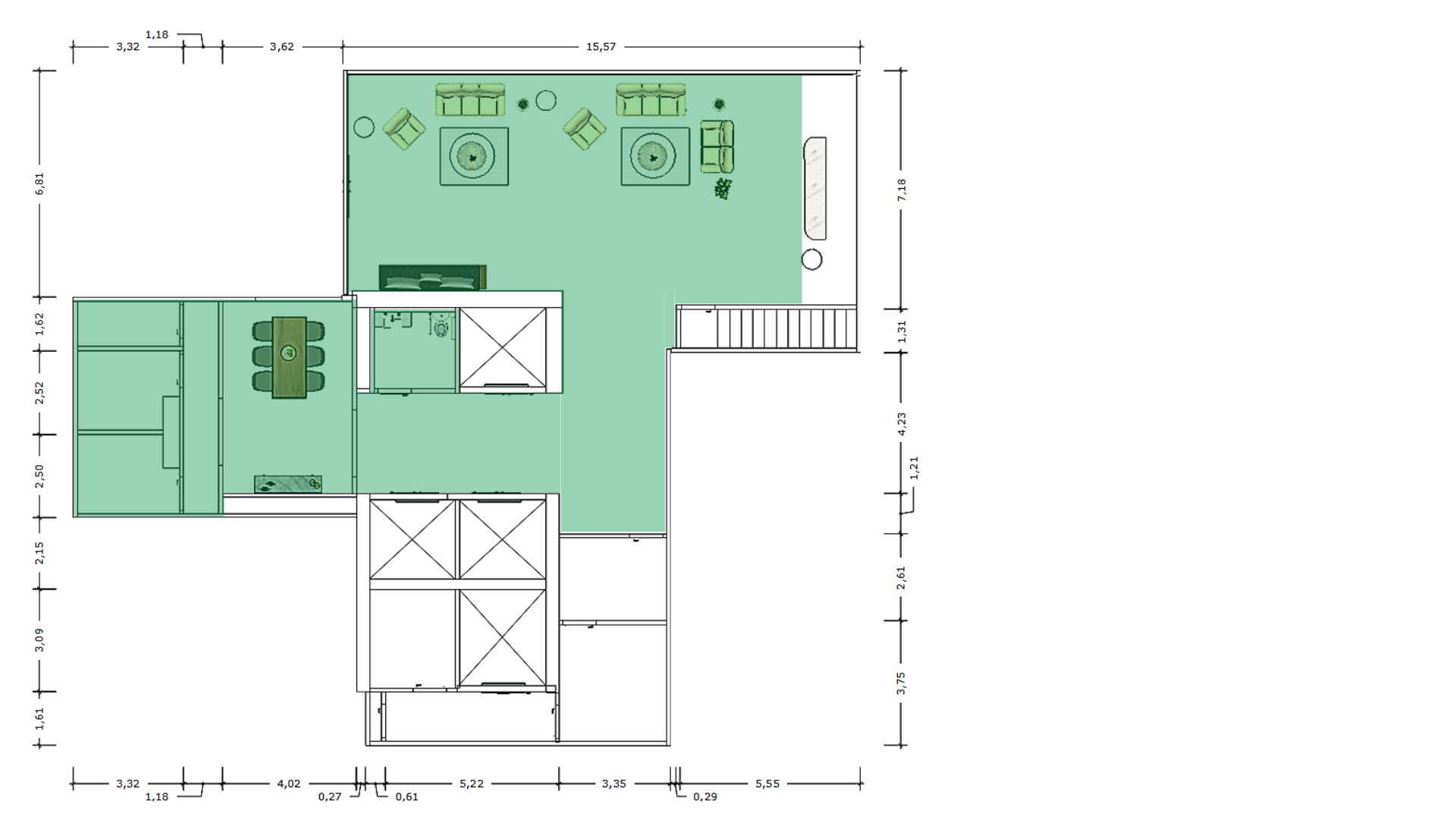
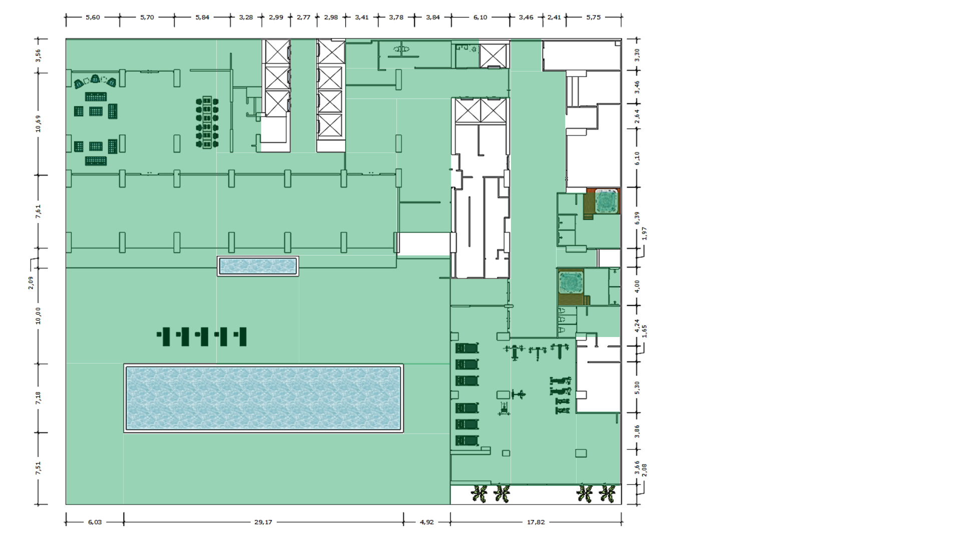
Jumlah penduduk daerah perkotaan di Indonesia tahun 2022 yang mengalami kesulitan berjalan atau naik tangga sebanyak 4.123.059 orang. Dengan adanya Peraturan Daerah Provinsi Jawa Timur tentang Perlindungan dan Pelayanan bagi penyandang disabilitas, hal ini dapat membantu kehidupan mereka menjadi lebih mudah. Beberapa pembangunan dalam apartemen memperhatikan dan mempertimbangkan penggunaan lebar pintu masuk, tempat parkir khusus, toilet khusus, dan lift. Penelitian ini menggunakan metode survei lokasi dan analisis data. Tujuan dari penelitian ini diharapkan bisa memperhatikan kelayakan hunian pengguna serta membantu memahami berbagai kesulitan yang mereka alami dengan mengatasi permasalahan dan kebutuhan mereka. Seperti, kesulitan mengakses gedung bertingkat dengan tangga dan melangkah ke area yang sempit. Hasil penelitian ini menunjukkan bahwa tipe studio tidak memenuhi syarat, sedangkan tipe 1 bedroom dan 2 bedroom memenuhi syarat. Pencahayaan dan penghawaan tidak dibahas karena tidak dalam persyaratan permen PUPR.

MEISSIE ANGELA Adi Santosa (Advisor and Examination Committee); MOCH TAUFAN RIZQI, S.Sn. (Advisor 1); Purnama Esa Dora Tedjokoesoemo, S.Sn., M.Sc. (Examination Committee 1); Ir. HENDY MULYONO (Examination Committee 2) Universitas Kristen Petra Indonesian Digital Theses Undergraduate Thesis Skripsi/Undergraduate Thesis Skripsi No. 00012032/DIN/2024; Meissie Angela (E11200061) APARTMENT HOUSES; PEOPLE WITH DISABILITIES--HOUSING

Files