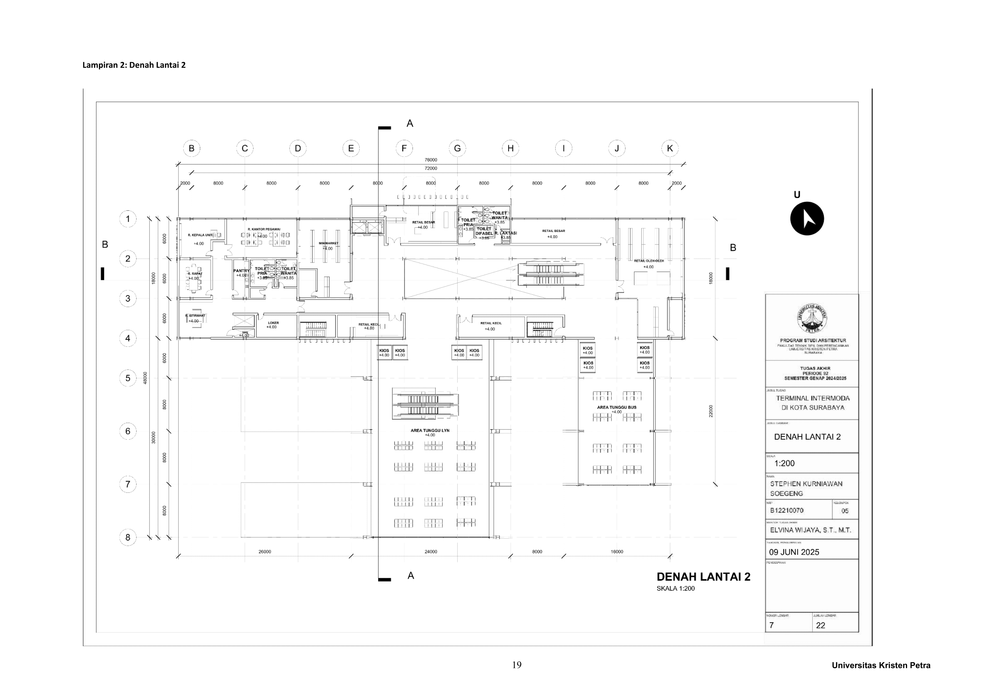
Terminal intermoda di Kota Surabaya

Kota Surabaya menjadi salah satu pusat perekonomian dan pemerintahan di provinsi Jawa Timur, Indonesia, yang menghadapi tantangan dalam peningkatan jumlah kendaraan bermotor pribadi. Kota Surabaya memiliki jumlah total kendaraan bermotor terbesar di provinsi Jawa Timur, di mana provinsi tersebut menjadi salah satu provinsi dengan jumlah kendaraan bermotor terbanyak di antara provinsi-provinsi lain. Jika tidak ada penanganan khusus untuk fenomena ini, jumlah kendaraan bermotor di Surabaya diproyeksikan dapat mencapai 10 juta unit pada tahun 2040. Dengan ini, kota Surabaya memiliki kebutuhan akan infrastruktur transportasi umum yang memadai. Salah satu lokasi tapak yang menjadi lokasi potensial untuk perancangan bangunan ini adalah Terminal Bratang. Terminal ini memiliki rute yang terhubung kepada wilayah Timur, Utara, dan Selatan kota Surabaya, serta rute ke Terminal Bungurasih dan Joyoboyo. Perancangan bangunan ini akan menggunakan pendekatan sistem sirkulasi untuk merespon masalah sirkulasi. Tujuannya untuk menghasilkan sebuah terminal intermoda dengan sirkulasi yang jelas, memberikan kontribusi terhadap pengembangan transportasi di Surabaya, serta menjadi referensi dalam perencanaan arsitektur terminal intermoda.

STEPHEN KURNIAWAN SOEGENG Elvina Shanggrama Wijaya, S.T., M.T. (Advisor 1); Dr. Ir. Joyce Marcella Laurens, M.Arch. (Examination Committee 1); Aris Budhiyanto, S.T., M.Sc., Ph.D. (Examination Committee 2); Roni Anggoro, S.T., M.A.Arch. (Examination Committee 3); Dr. Feny Elsiana, S.T., M.T. (Examination Committee 4); Luciana Kristanto, S.T., M.T. (Examination Committee 5) Universitas Kristen Petra Indonesian Digital Theses Undergraduate Thesis Laporan Perancangan Arsitektur Laporan Perancangan Arsitektur No. 00024667/ARS/2025; Stephen Kurniawan Soegeng (B12210070) TERMINALS (TRANSPORTATIONS)-- DESIGNS AND PLANS

Files